Sold Prior | Lot 20

186-187 Lewes Road, Brighton, BN2 3LD

Sold Prior

  • Land

Call the team on 01273 201989 for more information

Auction Date

Tue 02/12/2025

Auction Time

2.30pm

Auction Venue

Live Stream

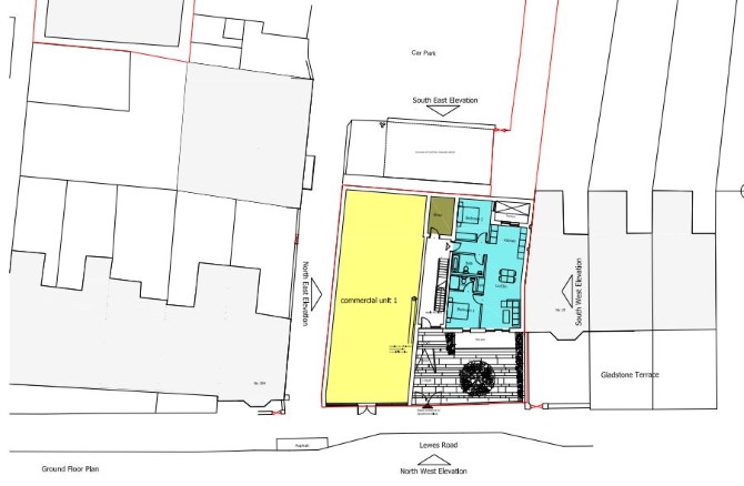
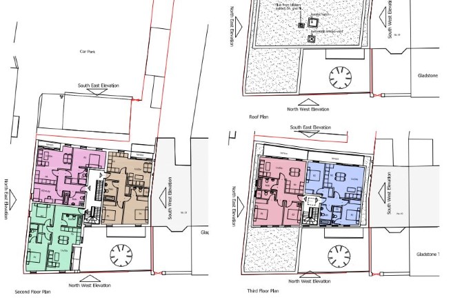
Freehold Development Site (With lapsed Planning Consent, for 9 x 2 Bedroom Flats And A 158 sqm Commercial Unit)

186-187 Lewes Road is a vacant site comprising, a former car sales showroom with two retail units & flats above. Planning consent was granted on the 29th September 2020 for the demolition of the existing building and the construction of 9 x 2 bedroom flats, with a 158 sqm retail unit on the ground floor (Planning permission expired on the 28th September 2023. Planning no BH2020/00239). Situation The site is situated at the southern end of Lewes Road, within close proximity of a variety of local amenities, cafes and shops. The North Laines and Brighton Mainline Railway Station are less than a mile from the property, (London Victoria 62 minutes). The area has seen significant investment and regeneration in recent years with many new, local independent retailers and cafes opening on Lewes Road. Location Pin (What3Words): rises.rested.hoot https://w3w.co/rises.rested.hoot NB WE DRAW YOUR ATTENTION TO THE SPECIAL CONDITIONS IN THE LEGAL PACK, REFERRING TO OTHER CHARGES IN ADDITION TO THE PURCHASE PRICE. PLEASE ENSURE YOU HAVE READ THE LEGAL PACK AND SPECIAL CONDITIONS THOROUGHLY Tenure Freehold

Lot Type

Plots/Building Land

Important Notice to Prospective Buyers:

We draw your attention to the Special Conditions of Sale within the Legal Pack, referring to other charges in addition to the purchase price which may become payable. Such costs may include Search Fees, reimbursement of Sellers costs and Legal Fees, and Transfer Fees amongst others.

Additional Fees

Administration Charge - Purchasers will be required to pay an Administration fee of 1% (inc VAT) of the sale price, subject to a minimum of £1,750 (inc VAT)

Disbursements - Please see the legal pack for any disbursements listed that may become payable by the purchaser on completion.

View Larger Map

Disclaimer: The map preview provided above is for general guidance only and may not accurately reflect the exact location or surrounding buildings. Prospective buyers and interested parties are strongly advised to independently verify the precise location and surroundings before bidding.