For Sale By Auction | 2.30pm, 28 January 2026 | Lot 20

Flat 1, 8 Nightingale Road, Southsea, PO5 3JL

Sold

  • Apartment
  • 2 Bedrooms

Call the team on 01273 201989 for more information

Auction Date

Wed 28/01/2026

Auction Time

2.30pm

Auction Venue

Live Stream

Vacant - Lower Ground Floor 2 x Bedroom Flat

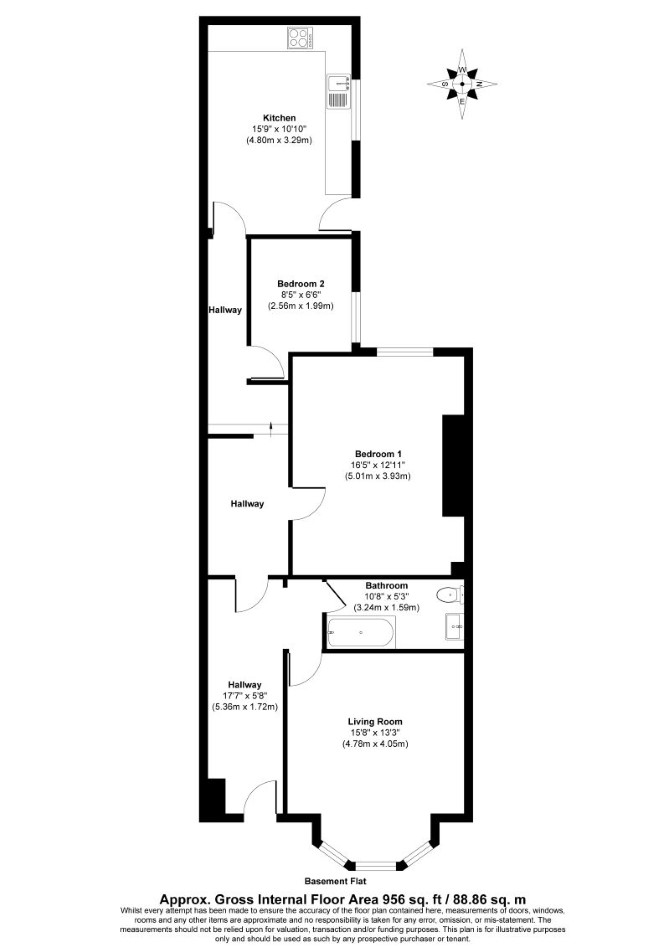
Leasehold lower ground floor flat, within a period conversion comprising; living room, kitchen, 2 bedrooms and a bathroom. Situation The property is located in the heart of Central Southsea minutes from the seafront, Southsea Common and Palmerston Road Shopping Precinct. Location Pin (What3Words): sings.mixer.think https://what3words.com/sings.mixer.think Accommodation Living Room - 4.7m x 4m Kitchen - 4.7m x 3.2m Bedroom 1 - 5m x 3.2m Bedroom 2 - 3.6m x 1.9m Bathroom - 3.2m x 1.5m Total Floor Area - 88 sq.m. (taken from EPC) NB WE DRAW YOUR ATTENTION TO THE SPECIAL CONDITIONS IN THE LEGAL PACK, REFERRING TO BUYERS PREMIUM OF £1,200 (INC VAT) AND OTHER CHARGES IN ADDITION TO THE PURCHASE PRICE. PLEASE ENSURE YOU READ THE SPECIAL CONDITIONS THOROUGHLY Tenure Leasehold - 125 year lease, from 1 January 2008 (107 years remaining). Ground rent - £150 pa, doubling every 25 years. Council Tax - Band A EPC Rating - C

No Additional Fees

False

Lot Type

Vacant Residential Flat For Improvement

Important Notice to Prospective Buyers:

We draw your attention to the Special Conditions of Sale within the Legal Pack, referring to other charges in addition to the purchase price which may become payable. Such costs may include Search Fees, reimbursement of Sellers costs and Legal Fees, and Transfer Fees amongst others.

Additional Fees

Administration Charge - Purchasers will be required to pay an Administration fee of 1% (inc VAT) of the sale price, subject to a minimum of £1,750 (inc VAT)

Disbursements - Please see the legal pack for any disbursements listed that may become payable by the purchaser on completion.

View Larger Map

Disclaimer: The map preview provided above is for general guidance only and may not accurately reflect the exact location or surrounding buildings. Prospective buyers and interested parties are strongly advised to independently verify the precise location and surroundings before bidding.