For Sale By Auction | 2.30pm, 28 January 2026 | Lot 43

6 Windmill Fields, East Worldham, Alton, Hampshire, GU34 3AR

*Guide | £237,000 (plus fees)

  • Semi-Detached House
  • 3 Bedrooms

Call the team on 01273 201989 for more information

Auction Date

Wed 28/01/2026

Auction Time

2.30pm

Auction Venue

Live Stream

Vacant 3 x Bedroom Semi-Detached Property

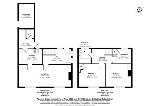
A three bedroom semi detached property comprising; living/dining room, kitchen, w/c, three bedrooms and a family bathroom. Externally there is are front and rear gardens. Situation The property is located in the village of East Worldham, with its local church, village hall and The Three Horseshoes pub. Approximately 2.5 miles from the property is the market town of Alton. Alton Mainline station offers direct routes to London Waterloo, (1 hour 10). Location Pin (What3Words): hurray.dust.gambles https://w3w.co/hurray.dust.gambles NB WE DRAW YOUR ATTENTION TO THE SPECIAL CONDITIONS IN THE LEGAL PACK, REFERRING TO BUYERS PREMIUM OF £1,500 (INC VAT) AND OTHER CHARGES IN ADDITION TO THE PURCHASE PRICE. PLEASE ENSURE YOU HAVE READ THE LEGAL PACK AND SPECIAL CONDITIONS THOROUGHLY Accommodation GROUND FLOOR Hallway - 13.9 x 7.3 Living Room - 25.3 x 10.6 Kitchen - 9.10 x 7.3 WC Outbuilding - 11.6 x 7.3 FIRST FLOOR Landing - 8.6 x 7.3 Bedroom 1 - 12.4 x 11.2 Bedroom 2 - 12.8 x 11.2 Bedroom 3 - 9.0 x 6.11 Bathroom - 6.11 x 5.11 Total Floor Area - 99.22 sq.m. (including outbuilding) Tenure - Freehold Council Tax - Band A EPC Rating - D

No Additional Fees

False

Lot Type

Residential For Improvement

Important Notice to Prospective Buyers:

We draw your attention to the Special Conditions of Sale within the Legal Pack, referring to other charges in addition to the purchase price which may become payable. Such costs may include Search Fees, reimbursement of Sellers costs and Legal Fees, and Transfer Fees amongst others.

Additional Fees

Administration Charge - Purchasers will be required to pay an Administration fee of 1% (inc VAT) of the sale price, subject to a minimum of £1,750 (inc VAT)

Disbursements - Please see the legal pack for any disbursements listed that may become payable by the purchaser on completion.

View Larger Map

Disclaimer: The map preview provided above is for general guidance only and may not accurately reflect the exact location or surrounding buildings. Prospective buyers and interested parties are strongly advised to independently verify the precise location and surroundings before bidding.