For Sale By Auction | 12:00, 11 September 2024 | Lot 31

5 Tyisha Road, Tumble, Llanelli, Carmarthenshire SA14 6HA

Sold After

  • Semi-Detached House
  • 3 Bedrooms
  • Tenure: Freehold

Call the team on 01633 212 555 for more information

Auction Date

Wed 11/09/2024

Auction Time

12:00

Auction Venue

ONLINE

Semi - Detached House - Three Bedrooms

Generous size semi detached house over two floors located in the village of Tumble to the north of the town of Llanelli. The A48 link road is nearby linking to the M4 to the east and further west towards Carmarthen and West Wales. The property requires some refurbishment and benefits from double glazing, spacious kitchen and a good sized rear garden with patio / seating area and a lawn.

Tenure

Freehold

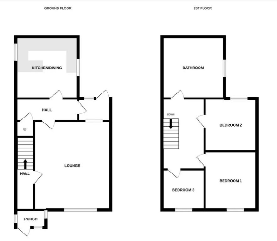
Ground Floor

Entrance porch, entrance hallway, good size living room, kitchen / diner and utility room.

First Floor

Three bedrooms and a bathroom.

Outside

Gardens to front and a large tiered rear garden with patio area and side access.

Viewing Schedule

Via Auction House Wales. Please call 01633 212555 to book an appointment.

Council Tax Band - C

Energy Efficiency Rating (EPC)

Current Rating E

Local Authority

Carmarthenshire County Council

Solicitors

George Davies and Evans, Castle Chambers, Ref: George Davies and Evans, Tel: 01239 612308

Important Notice to Prospective Buyers:

We draw your attention to the Special Conditions of Sale within the Legal Pack, referring to other charges in addition to the purchase price which may become payable. Such costs may include Search Fees, reimbursement of Sellers costs and Legal Fees, and Transfer Fees amongst others.

Additional Fees

Administration Charge - 1.2% inc VAT of the purchase price, subject to a minimum of £1200 inc VAT, payable on exchange of contracts.

Disbursements - Please see the legal pack for any disbursements listed that may become payable by the purchaser on completion.

View Larger Map

Disclaimer: The map preview provided above is for general guidance only and may not accurately reflect the exact location or surrounding buildings. Prospective buyers and interested parties are strongly advised to independently verify the precise location and surroundings before bidding.