For Sale By Auction | 12:00, 09 July 2025 | Lot 10

13 -15 Mill Hey, Haworth, Keighley, West Yorkshire BD22 8NQ

Sold

  • Commercial Property

Call the team on 0113 393 3482 for more information

Auction Date

Wed 09/07/2025

Auction Time

12:00

Auction Venue

Live Stream

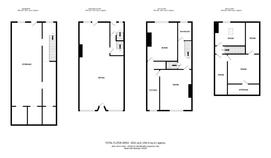
This vacant retail unit is ideal for owner occupiers or developers, as it’s ideally located within popular Haworth. Accommodation is over four floors and is in poor condition, so it does require a full refurbishment. There’s potential for the upper and lower floors to be converted into residential accommodation, similar to the surrounding properties, however it would be subject to the necessary planning permission. It’s located within Haworth, a historic village and tourist destination, located 3 miles south of Keighley. Although it’s rural, it has plenty of facilities including restaurants, schools, parks and museums.

In addition to the deposit Administration Charge: 1.2% inc VAT of the purchase price subject to a minimum of £1,500 inc VAT.

Lower Ground Floor

Basement.

Ground Floor

Retail.

First Floor

Kitchen, two rooms and bathroom.

Second Floor

Three rooms.

Externally

Parking to the rear.

ADDITIONAL INFORMATION

EPC

Rating E.

Tenure

Freehold.

Charges & Payments

In addition to the deposit Administration Charge: 1.2% inc VAT of the purchase price subject to a minimum of £1,500 inc VAT.

Important Notice to Prospective Buyers:

We draw your attention to the Special Conditions of Sale within the Legal Pack, referring to other charges in addition to the purchase price which may become payable. Such costs may include Search Fees, reimbursement of Sellers costs and Legal Fees, and Transfer Fees amongst others.

Additional Fees

Administration Charge - See above

Disbursements - Please see the legal pack for any disbursements listed that may become payable by the purchaser on completion.

View Larger Map

Disclaimer: The map preview provided above is for general guidance only and may not accurately reflect the exact location or surrounding buildings. Prospective buyers and interested parties are strongly advised to independently verify the precise location and surroundings before bidding.