For Sale By Auction | 12:00, 09 July 2025 | Lot 48

42 Station Road, Leeds, West Yorkshire LS25 7LB

Sold After

  • Semi-Detached House
  • 3 Bedrooms

Call the team on 0113 393 3482 for more information

Auction Date

Wed 09/07/2025

Auction Time

12:00

Auction Venue

Live Stream

This three bedroom semi detached house with driveway and gardens is offered for sale via traditional auction. The property is in good internal condition and would make a great family home or addition to a rental portfolio. In some areas, it may benefit from some minor cosmetic upgrades. Situated in Kippax, a residential village 9 miles East of Leeds. There are local schools within Kippax, but further shops and amenities can be found in nearby Garforth. There’s easy access onto the A1 and M1 motorway network. Buyers should be aware that the property does have both internal and external cracking, however, we believe this is caused by thermal movement rather than structural issues. It’s also of non standard construction (Wimpey No Fines ). Buyers are advised to do their own research in this regard.

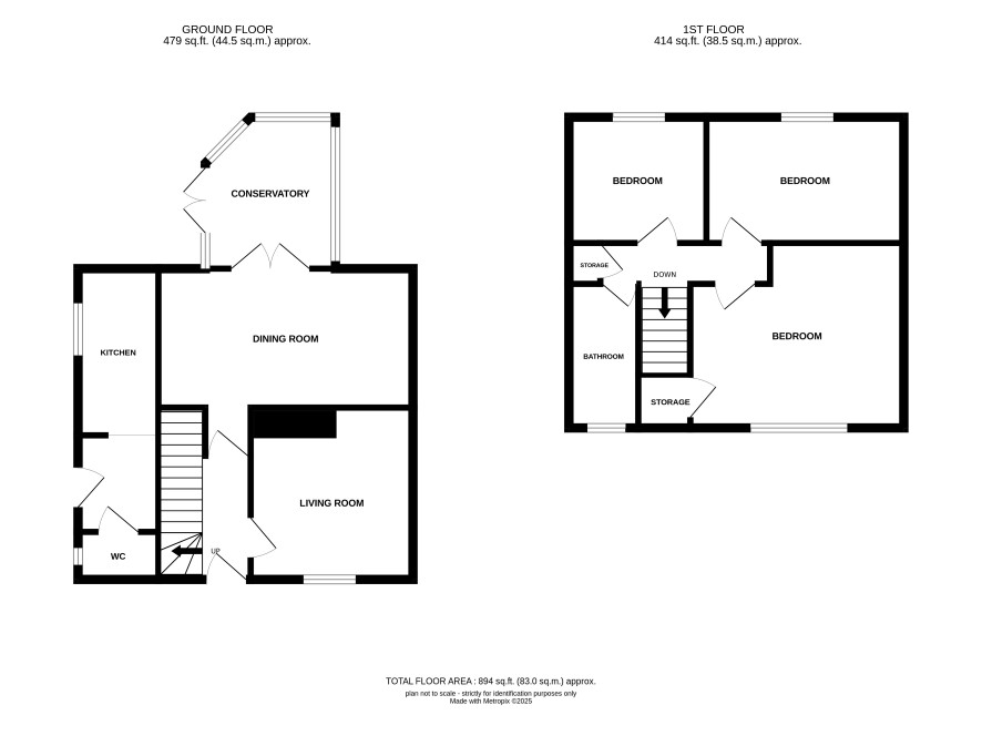
ACCOMMODATION

Ground Floor

Living room, dining room, kitchen, conservatory and wc.

First Floor

Three bedrooms and bathroom.

Externally

Front and rear gardens and driveway.

ADDITIONAL INFORMATION

Council Tax

Band A.

EPC

Rating D.

Tenure

Freehold.

Charges & Payments

In addition to the deposit Administration Charge: 1.2% inc VAT of the purchase price subject to a minimum of £1,500 inc VAT. Searches £300 inclu VAT

Disbursements

In addition to the deposit Administration Charge: 1.2% inc VAT of the purchase price subject to a minimum of £1,500 inc VAT. Searches £300 inclu VAT

Important Notice to Prospective Buyers:

We draw your attention to the Special Conditions of Sale within the Legal Pack, referring to other charges in addition to the purchase price which may become payable. Such costs may include Search Fees, reimbursement of Sellers costs and Legal Fees, and Transfer Fees amongst others.

Additional Fees

Administration Charge - See above

Disbursements - Please see the legal pack for any disbursements listed that may become payable by the purchaser on completion.

View Larger Map

Disclaimer: The map preview provided above is for general guidance only and may not accurately reflect the exact location or surrounding buildings. Prospective buyers and interested parties are strongly advised to independently verify the precise location and surroundings before bidding.