For Sale By Auction | 12:00, 22 October 2025 | Lot 29

The Hope & Anchor , 245 South Street, Keighley, West Yorkshire BD21 1AG

*Guide | £140,000 (plus fees)

  • Pub
  • Tenure: See Legal Pack

Call the team on 0113 393 3482 for more information

Auction Date

Wed 22/10/2025

Auction Time

12:00

Auction Venue

Live Stream

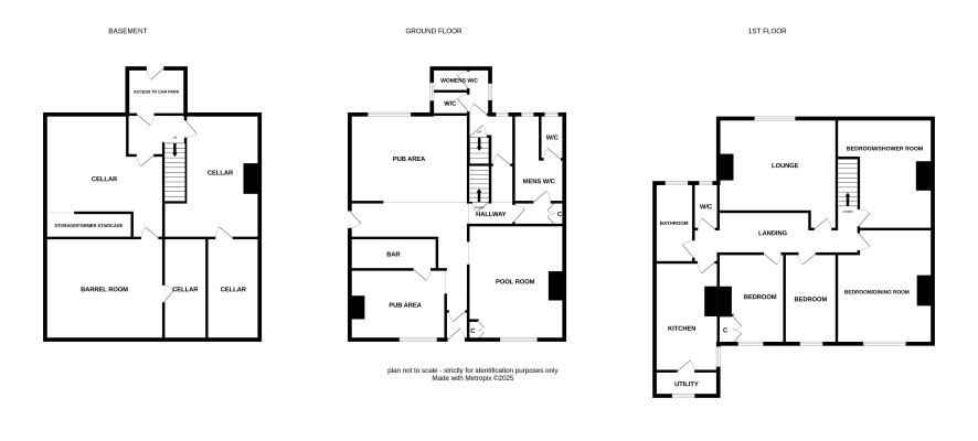
The former Hope & Anchor pub is offered for sale via traditional auction. The property consists of a traditional pub with pool room to the ground floor, cellar storage and also spacious living accommodation to the first floor. There is also a car park to the rear. Whilst the upper floor does require renovation, this would be a great purchase for an owner occupier or commercial landlord. There may also be scope to convert the property to residential with the passing of the relevant planning permissions. The property is situated fronting onto South Street, approx. half a mile south of Keighley Town Centre, in an established and busy main road location, and near to a densely populated residential area. Buyers should be aware the vendor is retaining a proportion of land towards the bottom of the car park, the relevant title split documents will be provided within the legal pack. Buyers are advised to do their own research in this regard.

Tenure

See Legal Pack

Lower Ground Floor

Spacious pub cellar

Ground Floor

Pub space, bar, pool room, male toilets and female toilets

First Floor

Lounge, kitchen, utlity, bathroom, w/c, dining room and three bedrooms

Externally

Car park to the rear

ADDITIONAL INFORMATION

Local Authority

City of Bradford Metropolitan District Council.

EPC Rating

D

Tenure

Freehold

Charges & Payments

In addition to the deposit: Administration Charge: 1.2% inc VAT of the purchase price subject to a minimum of £1,500 inc VAT.

Disbursements

Any additional disbursements payable by the purchaser are yet to be confirmed by the vendor's solicitor. For more details, please see the legal pack.

Important Notice to Prospective Buyers:

We draw your attention to the Special Conditions of Sale within the Legal Pack, referring to other charges in addition to the purchase price which may become payable. Such costs may include Search Fees, reimbursement of Sellers costs and Legal Fees, and Transfer Fees amongst others.

Additional Fees

Administration Charge - See above

Disbursements - Please see the legal pack for any disbursements listed that may become payable by the purchaser on completion.

View Larger Map

Disclaimer: The map preview provided above is for general guidance only and may not accurately reflect the exact location or surrounding buildings. Prospective buyers and interested parties are strongly advised to independently verify the precise location and surroundings before bidding.