For Sale By Auction | 12:00, 22 October 2025 | Lot 77

Flats 1-8, 238 Dewsbury Road, Leeds , West Yorkshire LS11 6ER

*Guide | £230,000 (plus fees)

  • Terraced House
  • 8 Bedrooms

Call the team on 0113 393 3482 for more information

Auction Date

Wed 22/10/2025

Auction Time

12:00

Auction Venue

Live Stream

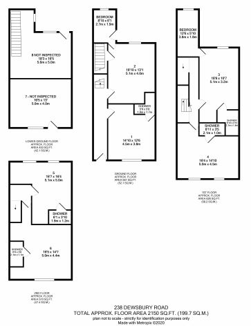
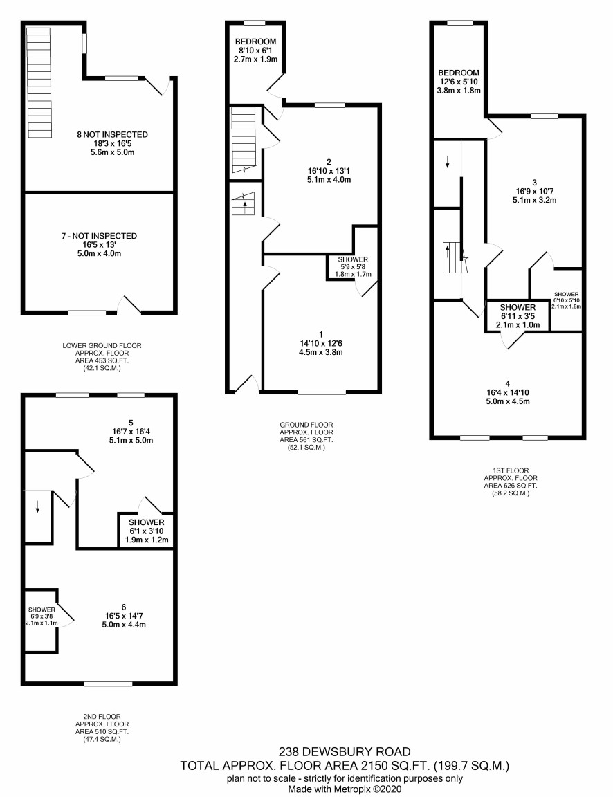
This substantial through terrace is currently fully let and generating an income of £64,608 per annum. The property is split into 8 studio apartments with each flat is separately rated for council tax and contains its own electric submeter. The landlord pays for any water usage. The property is located within the Beeston area, just one mile from Leeds city centre. Interested parties should be aware that a prohibition notice has been served on the property which stipulates each apartment can only be occupied by a single occupant. Based on the current tenancy agreements, this obligation is currently being complied with. Buyers are advised to do their own research in this regard. Please note the photos provided are from 2024 and Auction House has not inspected the full property.

Lower Ground Floor

Flat and studio.

Ground Floor

Flat and studio.

First Floor

Flat and studio.

Second Floor

Two studios.

Externally

The property has a yard to the front and rear.

Charges & Payments

In addition to the deposit Administration Charge: 0.9% inc VAT of the purchase price subject to a minimum of £1,500 inc VAT. Search Fees: £300 inc VAT.

Important Notice to Prospective Buyers:

We draw your attention to the Special Conditions of Sale within the Legal Pack, referring to other charges in addition to the purchase price which may become payable. Such costs may include Search Fees, reimbursement of Sellers costs and Legal Fees, and Transfer Fees amongst others.

Additional Fees

Administration Charge - See above

Disbursements - Please see the legal pack for any disbursements listed that may become payable by the purchaser on completion.

View Larger Map

Disclaimer: The map preview provided above is for general guidance only and may not accurately reflect the exact location or surrounding buildings. Prospective buyers and interested parties are strongly advised to independently verify the precise location and surroundings before bidding.