For Sale By Auction | 12:00, 22 October 2025 | Lot 23

Flats 1-3, , 139 Vesper Road, Leeds, West Yorkshire LS5 3LJ

*Guide | £175,000 (plus fees)

  • End of Terrace House
  • 5 Bedrooms

Call the team on 0113 393 3482 for more information

Auction Date

Wed 22/10/2025

Auction Time

12:00

Auction Venue

Live Stream

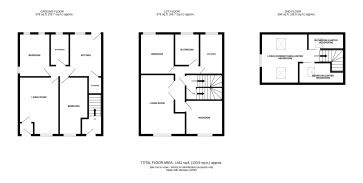
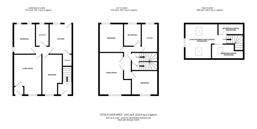
This spacious end terrace was split into three flats many years ago and is sure to appeal to any investors looking to build their portfolio. At present, the ground and first floor flats (both with two bedrooms) are vacant while the one bedroom flat on the second floor is let and generating £6,300 per annum. Externally the property has a driveway to the side and a rear yard. The property is located in a popular residential area 3.7 miles to the North West of Leeds city centre and less than a one mile from the Kirkstall Forge Train Station. Interested parties should be aware that although the sale does include the freehold, two of the flats have been split onto leasehold titles which also form part of the sale.

Ground Floor

Living room, kitchen, two bedrooms and bathroom.

First Floor

Living room, kitchen, two bedrooms and bathroom.

Second Floor

Living/kitchen, bedroom and bathroom.

ADDITIONAL INFORMATION

Council Tax

Band A.

EPC

Ground Floor Flat: C Mid Floor Flat: D Top Floor Flat: C

Tenure

Freehold / Leasehold.

Disclaimer

Any information in relation to the length of lease, service charge, ground rent and council tax has been confirmed by our sellers. We advise buyers to make their own enquiries through their solicitors to verify that the information provided is accurate and not been subject to any change.

Charges & Payments

In addition to the deposit Administration Charge: 1.2% inc VAT of the purchase price subject to a minimum of £1,500 inc VAT.

Important Notice to Prospective Buyers:

We draw your attention to the Special Conditions of Sale within the Legal Pack, referring to other charges in addition to the purchase price which may become payable. Such costs may include Search Fees, reimbursement of Sellers costs and Legal Fees, and Transfer Fees amongst others.

Additional Fees

Administration Charge - See above

Disbursements - Please see the legal pack for any disbursements listed that may become payable by the purchaser on completion.

View Larger Map

Disclaimer: The map preview provided above is for general guidance only and may not accurately reflect the exact location or surrounding buildings. Prospective buyers and interested parties are strongly advised to independently verify the precise location and surroundings before bidding.