For Sale By Auction | 12:00, 22 October 2025 | Lot 50

82A Fountain Street, Morley, Leeds, West Yorkshire LS27 0PH

*Guide | £40,000 - £45,000 (plus fees)

  • Commercial Property

Call the team on 0113 393 3482 for more information

Auction Date

Wed 22/10/2025

Auction Time

12:00

Auction Venue

Live Stream

Sure to appeal to a variety of investors / developers, this charming two storey detached commercial unit is categorised as a store and premises for business rates and oozes potential for change of use, subject to the necessary consents being obtained. We understand the property includes the driveway to the side of No. 82 and benefits from electricity, mains water and drainage. The property is located close to Morley town centre and has excellent links to the local motorway network.

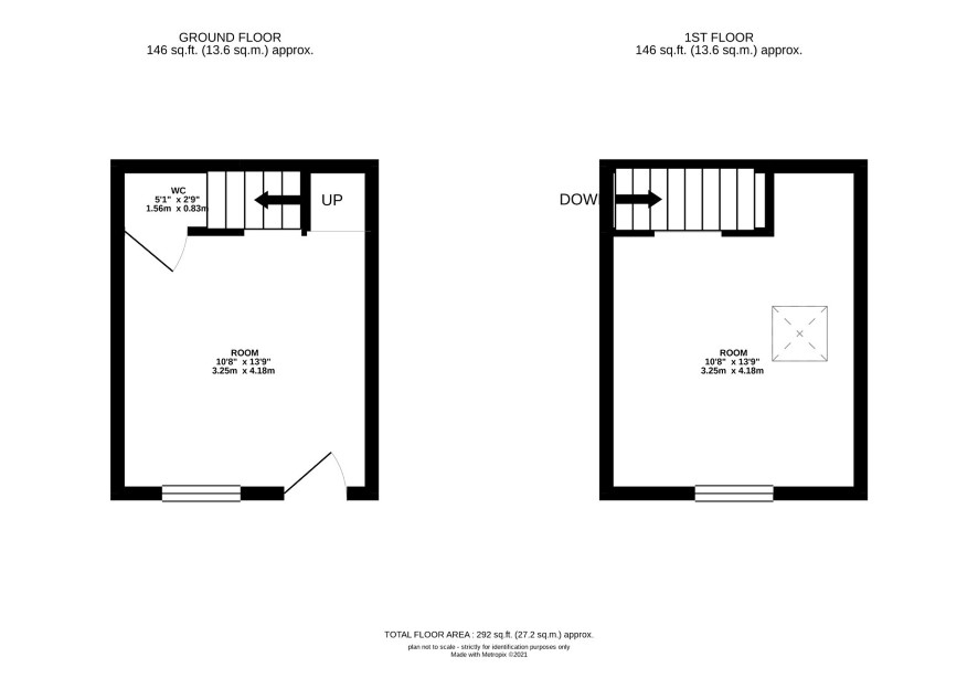
Ground Floor

Room & WC

First Floor

Room

Additional Information

Local Authority

Leeds City Council

EPC Rating

D

Tenure

Freehold

Charges and Payments

In addition to the deposit Administration Charge: 1.2% inc VAT of the purchase price subject to a minimum of £1,500 inc VAT.

Important Notice to Prospective Buyers:

We draw your attention to the Special Conditions of Sale within the Legal Pack, referring to other charges in addition to the purchase price which may become payable. Such costs may include Search Fees, reimbursement of Sellers costs and Legal Fees, and Transfer Fees amongst others.

Additional Fees

Administration Charge - See above

Disbursements - Please see the legal pack for any disbursements listed that may become payable by the purchaser on completion.

View Larger Map

Disclaimer: The map preview provided above is for general guidance only and may not accurately reflect the exact location or surrounding buildings. Prospective buyers and interested parties are strongly advised to independently verify the precise location and surroundings before bidding.