For Sale By Auction | 12:00, 10 December 2025 | Lot 26

Flats 2-4, 25 Cranbrook Avenue, Leeds, West Yorkshire LS11 7AX

Sold

  • Terraced House
  • 3 Bedrooms

Call the team on 0113 393 3482 for more information

Auction Date

Wed 10/12/2025

Auction Time

12:00

Auction Venue

Live Stream

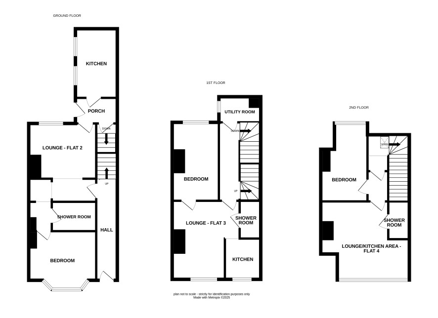
This through terrace split into three one bedroom apartments is offered for sale via traditional auction. The property is currently fully occupied generating a gross rental income of £19,980 per annum which reflects a 12.89% yield based on the guide price. This would make a great addition to a rental portfolio. Beeston is a well established residential area that's popular with a wide range of buyers. With a busy high street and wide range of independent shops, cafes and restaurants, Beeston also benefits from easy access to Leeds centre, being less than 2 miles to the north. Please note the property was formally 4 flats, however flat 1 has since been re-configured to form part of flat 2, hence flats 2-4. Please see floorplan for further clarity.

Lower Ground Floor

Cellar.

Ground Floor

Communal hallway, Flat 2 - lounge/kitchen, bedroom and bathroom.

First Floor

Landing, communal utility room. Flat 3 - Lounge/kitchen, bedroom and shower room.

Second Floor

Flat 4 - Lounge/kitchen area, bedroom and shower room.

Externally

Rear yard.

Additional Information

Council Tax

Band A.

EPC

Flat 2 - Rating E. Flat 3 - Rating D. Flat 4 - Rating E

Tenure

Freehold.

Charges & Payments

In addition to the deposit Administration Charge: 1.2% inc VAT of the purchase price subject to a minimum of £1,500 inc VAT. Searches £300 inc VAT

Important Notice to Prospective Buyers:

We draw your attention to the Special Conditions of Sale within the Legal Pack, referring to other charges in addition to the purchase price which may become payable. Such costs may include Search Fees, reimbursement of Sellers costs and Legal Fees, and Transfer Fees amongst others.

Additional Fees

Administration Charge - See above

Disbursements - Please see the legal pack for any disbursements listed that may become payable by the purchaser on completion.

View Larger Map

Disclaimer: The map preview provided above is for general guidance only and may not accurately reflect the exact location or surrounding buildings. Prospective buyers and interested parties are strongly advised to independently verify the precise location and surroundings before bidding.