Sold Prior | Lot 9

11 Cambridge Street, Mexborough, South Yorkshire S64 9RN

Sold Prior

  • Terraced House
  • 2 Bedrooms

Call the team on 0113 393 3482 for more information

Auction Date

Wed 10/12/2025

Auction Time

12:00

Auction Venue

Live Stream

This two bedroom through terrace with rear garden is offered for sale via traditional auction. We understand the property to be in average condition and is currently tenanted generated a gross rental income of £5,400 per annum. This property would make a great addition to a rental portfolio. Located in the vibrant town of Mexborough, this property is close to local amenities, shops, schools, and excellent transport links.

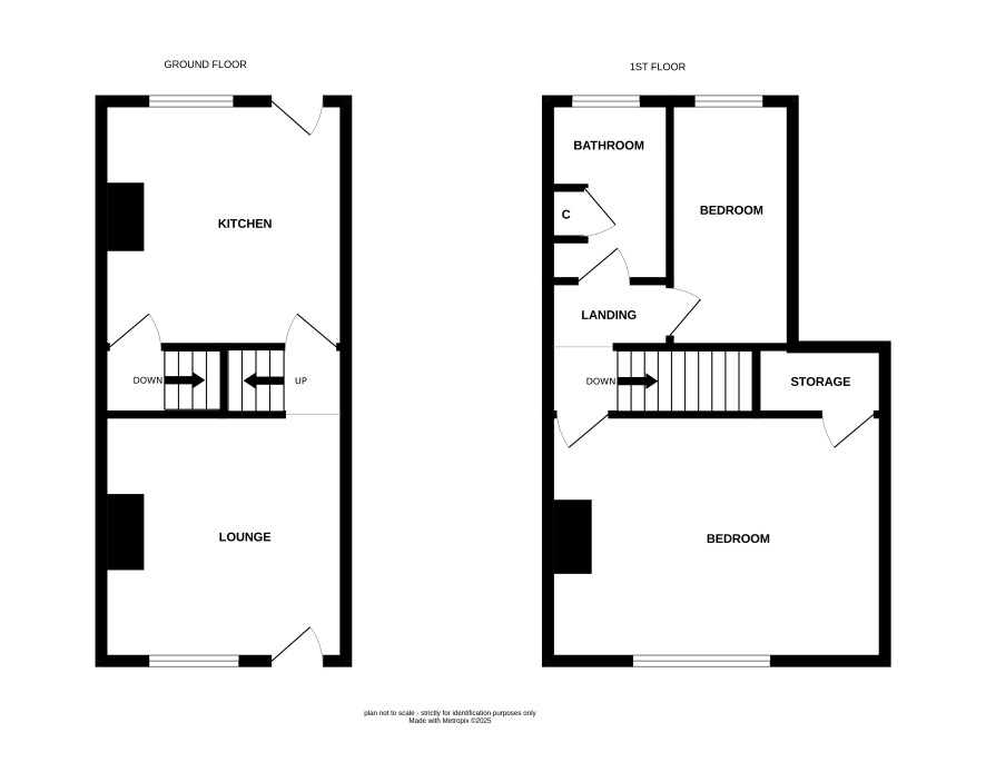
Ground Floor

Lounge and kitchen.

First Floor

Two bedrooms and bathroom.

Externally

Rear garden.

ADDITIONAL INFORMATION

Council Tax

Band A.

EPC

Rating E.

Tenure

Freehold.

Charges & Payments

In addition to the deposit Administration Charge: 1.2% inc VAT of the purchase price subject to a minimum of £1,500 inc VAT.

Important Notice to Prospective Buyers:

We draw your attention to the Special Conditions of Sale within the Legal Pack, referring to other charges in addition to the purchase price which may become payable. Such costs may include Search Fees, reimbursement of Sellers costs and Legal Fees, and Transfer Fees amongst others.

Additional Fees

Administration Charge - See above

Disbursements - Please see the legal pack for any disbursements listed that may become payable by the purchaser on completion.

View Larger Map

Disclaimer: The map preview provided above is for general guidance only and may not accurately reflect the exact location or surrounding buildings. Prospective buyers and interested parties are strongly advised to independently verify the precise location and surroundings before bidding.