Sold Prior | Lot 33

Flats 1-5, 10 Noster Hill, Leeds, West Yorkshire LS11 8QE

Sold Prior

  • Terraced House
  • 5 Bedrooms

Call the team on 0113 393 3482 for more information

Auction Date

Wed 10/12/2025

Auction Time

12:00

Auction Venue

Live Stream

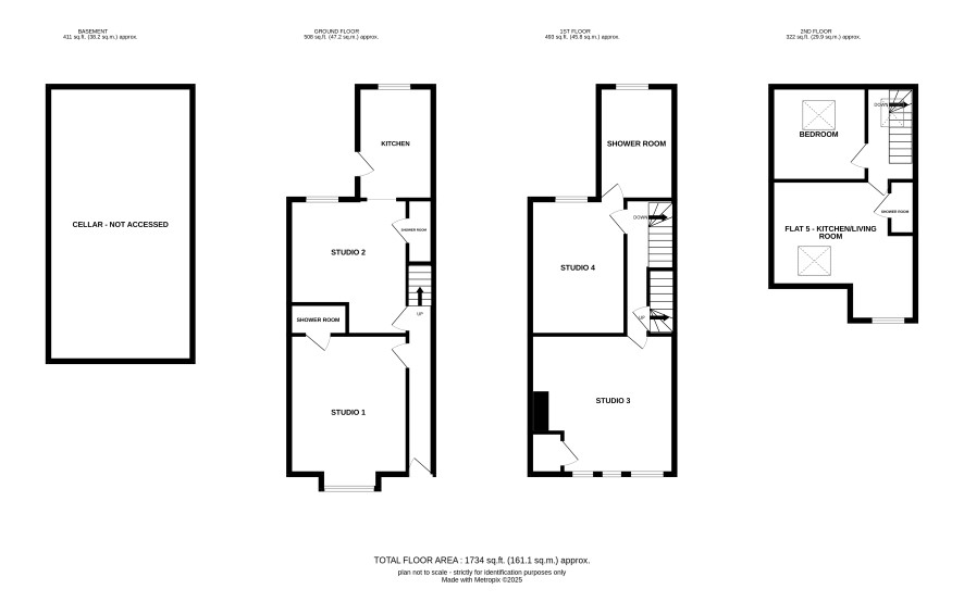
This substantial through terrace is currently fully let and generating an income of £40,300 per annum. The property is split into 4 studio apartments and a 1 bedroom flat, with each flat separately rated for council tax. The tenants all pay for their own bills. The property is located within the Beeston area, just one mile from Leeds city centre. It’s in easy reach to amenities within the city centre and the motorway network.

Ground Floor

Studio 1 and shower room. Studio 2 and shower room.

First Floor

Studio 3 and shower room. Studio 4 and shower room.

Second Floor

Flat 5 - Bedroom, kitchen/living room and shower room.

Externally

Front yard.

Additional Information

Council Tax

Band A.

EPC Ratings

C,D,D & C.

Tenure

Freehold.

Charges & Payments

In addition to the deposit Administration Charge: 1.2% inc VAT of the purchase price subject to a minimum of £1,500 inc VAT. Searches £300 inc VAT.

Important Notice to Prospective Buyers:

We draw your attention to the Special Conditions of Sale within the Legal Pack, referring to other charges in addition to the purchase price which may become payable. Such costs may include Search Fees, reimbursement of Sellers costs and Legal Fees, and Transfer Fees amongst others.

Additional Fees

Administration Charge - See above

Disbursements - Please see the legal pack for any disbursements listed that may become payable by the purchaser on completion.

View Larger Map

Disclaimer: The map preview provided above is for general guidance only and may not accurately reflect the exact location or surrounding buildings. Prospective buyers and interested parties are strongly advised to independently verify the precise location and surroundings before bidding.