For Sale By Auction | 12:00, 04 February 2026 | Lot 6

96 Main Street, Scholes, Leeds, West Yorkshire LS15 4DR

*Guide | £310,000 (plus fees)

  • Mixed Use
  • 3 Bedrooms

Call the team on 0113 393 3482 for more information

Auction Date

Wed 04/02/2026

Auction Time

12:00

Auction Venue

Live Stream

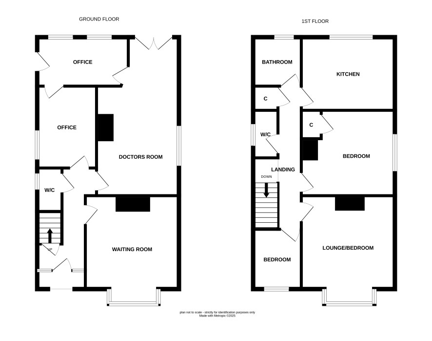
This detached doctors surgery with a 2/3 bedroom apartment upstairs, off street parking and spacious rear garden is offered for sale via traditional auction. The property is well suited for an owner occupier, or someone looking to convert the property back to a detached family home, subject to the passing of the relevant permissions. Situated in the sought after east Leeds village of Scholes offering ease of access to the excellent shopping facilities at Crossgates including the Crossgates Shopping Centre and local railway station. Good vehicular access to the A64 York Road, A1/M1 Link Road and indeed Leeds city centre.

Ground Floor

Waiting room, consulting room, two offices and a WC

First Floor

Lounge/bedroom, kitchen, two further bedrooms, bathroom and WC

Externally

Off street parking and a rear garden

Additional Information

Council Tax (Flat)

Leeds City Council - Band B

EPC Rating

To follow

Tenure

Freehold

Charges and Payments

In addition to the deposit Administration Charge: 1.2% inc VAT of the purchase price subject to a minimum of £1,500 inc VAT.

Important Notice to Prospective Buyers:

We draw your attention to the Special Conditions of Sale within the Legal Pack, referring to other charges in addition to the purchase price which may become payable. Such costs may include Search Fees, reimbursement of Sellers costs and Legal Fees, and Transfer Fees amongst others.

Additional Fees

Administration Charge - See above

Disbursements - Please see the legal pack for any disbursements listed that may become payable by the purchaser on completion.

View Larger Map

Disclaimer: The map preview provided above is for general guidance only and may not accurately reflect the exact location or surrounding buildings. Prospective buyers and interested parties are strongly advised to independently verify the precise location and surroundings before bidding.