For Sale By Auction | 12:00, 04 February 2026 | Lot 14

55 Brudenell Road, Leeds, West Yorkshire LS6 1HA

*Guide | £240,000 (plus fees)

  • Terraced House
  • 5 Bedrooms

Call the team on 0113 393 3482 for more information

Auction Date

Wed 04/02/2026

Auction Time

12:00

Auction Venue

Live Stream

This substantial five bedroom through terrace is now in need of complete modernisation and refurbishment but offers a huge amount of potential. We believe the property would either lend itself to use as a large family home, buy to let investment or conversion into flats, subject to the necessary planning consents being obtained. Externally the property has a good sized garden to the front with a yard and garage to the rear. The property is located in the heart of Hyde Park with the university campus and city centre less than one mile away.

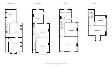
Lower Ground Floor

Cellar room and a kitchen

Ground Floor

Living room, dining room and kitchen

First Floor

Two bedrooms, bathroom and a shower room

Second Floor

Two bedrooms

Externally

Garden to the front and a garage to the rear

Additional Information

Council Tax

Leeds City Council - Band C

EPC Rating

E

Tenure

Freehold

Charges and Payments

In addition to the deposit Administration Charge: 1.2% inc VAT of the purchase price subject to a minimum of £1,500 inc VAT. Searches £300 inc VAT.

Important Notice to Prospective Buyers:

We draw your attention to the Special Conditions of Sale within the Legal Pack, referring to other charges in addition to the purchase price which may become payable. Such costs may include Search Fees, reimbursement of Sellers costs and Legal Fees, and Transfer Fees amongst others.

Additional Fees

Administration Charge - See above

Disbursements - Please see the legal pack for any disbursements listed that may become payable by the purchaser on completion.

View Larger Map

Disclaimer: The map preview provided above is for general guidance only and may not accurately reflect the exact location or surrounding buildings. Prospective buyers and interested parties are strongly advised to independently verify the precise location and surroundings before bidding.