For Sale By Auction | 12:00, 04 February 2026 | Lot 30

134 Bradford Road, East Ardsley, Wakefield, West Yorkshire WF3 2DJ

*Guide | £75,000 (plus fees)

  • Terraced House
  • 2 Bedrooms

Call the team on 0113 393 3482 for more information

Auction Date

Wed 04/02/2026

Auction Time

12:00

Auction Venue

Live Stream

This two bedroom, end terraced house with rear garden is ideal for someone seeking a refurbishment project. It’s sold with vacant possession and does require a scheme of modernisation. Similar properties have recently been marketed to rent between £800-900pcm, making it an ideal opportunity for an investor. It’s located in East Ardsley, which is a residential village 10 miles south of Leeds. It has excellent motorway links and is only a 10 minute drive to Wakefield and 20 minutes to Leeds. There are local shops and schools, however, further amenities are only a short distance. Any interested parties should be aware that the property is showing signs of minor cracking and are advised to do their own research in this regard prior to bidding.

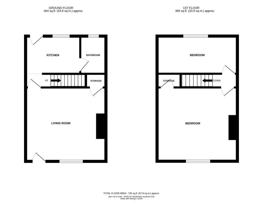
Ground Floor

Living room, kitchen and bathroom

First Floor

Two bedrooms

Additional Information

Council Tax

Leeds City Council - Band A

EPC Rating

D

Tenure

Freehold

Charges and Payments

In addition to the deposit Administration Charge: 1.2% inc VAT of the purchase price subject to a minimum of £1,500 inc VAT.

Important Notice to Prospective Buyers:

We draw your attention to the Special Conditions of Sale within the Legal Pack, referring to other charges in addition to the purchase price which may become payable. Such costs may include Search Fees, reimbursement of Sellers costs and Legal Fees, and Transfer Fees amongst others.

Additional Fees

Administration Charge - See above

Disbursements - Please see the legal pack for any disbursements listed that may become payable by the purchaser on completion.

View Larger Map

Disclaimer: The map preview provided above is for general guidance only and may not accurately reflect the exact location or surrounding buildings. Prospective buyers and interested parties are strongly advised to independently verify the precise location and surroundings before bidding.