For Sale By Auction | 12:00, 04 February 2026 | Lot 19

17 Buller Street, Bradford, West Yorkshire BD4 8QF

*Guide | £85,000 (plus fees)

  • Terraced House
  • 3 Bedrooms

Call the team on 0113 393 3482 for more information

Auction Date

Wed 04/02/2026

Auction Time

12:00

Auction Venue

Live Stream

This three bedroom through terrace with rear yard, in good condition, is offered for sale via traditional auction. The property is currently tenanted with the arrangement with the tenant that they shall pay £600 per calendar month. Unfortunately in recent times the tenant has fallen behind with the rent and is currently in arrears. Buyers are advised to review the legal pack for further information and complete their own research in this regard. Located in a popular residential location close to local amenities and schools with great transport links.

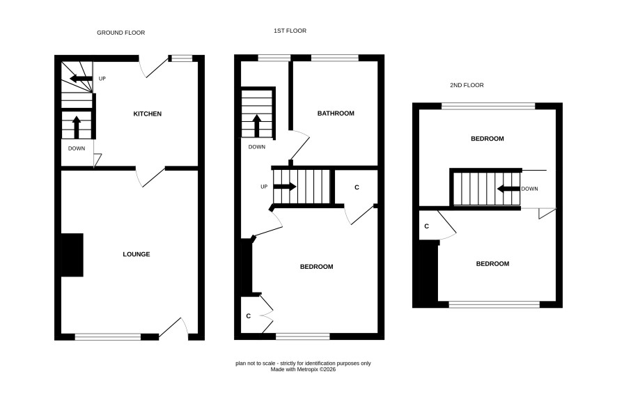
Lower Ground Floor

Cellar.

Ground Floor

Lounge and kitchen.

First Floor

Bedroom and bathroom.

Second Floor

Two bedrooms.

Externally

Rear yard.

Additional Information

Council Tax

Band A.

EPC

Rating E.

Tenure

Freehold.

Charges & Payments

In addition to the deposit Administration Charge: 1.2% inc VAT of the purchase price subject to a minimum of £1,500 inc VAT. Searches £300 inc VAT

Important Notice to Prospective Buyers:

We draw your attention to the Special Conditions of Sale within the Legal Pack, referring to other charges in addition to the purchase price which may become payable. Such costs may include Search Fees, reimbursement of Sellers costs and Legal Fees, and Transfer Fees amongst others.

Additional Fees

Administration Charge - See above

Disbursements - Please see the legal pack for any disbursements listed that may become payable by the purchaser on completion.

View Larger Map

Disclaimer: The map preview provided above is for general guidance only and may not accurately reflect the exact location or surrounding buildings. Prospective buyers and interested parties are strongly advised to independently verify the precise location and surroundings before bidding.