Postponed | Lot 9

Flats 1-3, 10a & 10b at 10 Ashgrove, Bradford, West Yorkshire BD7 1BN

Postponed

  • Terraced House
  • 11 Bedrooms

Call the team on 0113 393 3482 for more information

Auction Date

Wed 25/03/2026

Auction Time

12:00

Auction Venue

Live Stream

This well-presented investment opportunity comprises a through terraced house split into five flats, totalling eleven bedrooms. There are four flats with two bedrooms, and one flat with three bedrooms, all of which are tenanted and generating £59,280 per annum. The tenants are a combination of professionals with families and students. The property has been set up to a high standard and well-maintained over the years by the current owner, and is a ready-made investment for a buyer. The property is located in Bradford city centre, less than 100 metres from the University and a short walk to the shops and amenities. Conveniently, there are Bradford Interchange and Bradford Forster Square train stations in easy reach for commuting to Manchester, Halifax and Leeds. Please note: a 6 week completion applies to this lot and the marketing photos used were taken prior to current occupancy.

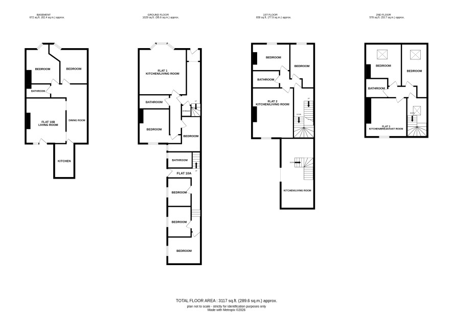
Lower Ground Floor

Flat 10b: Living room, dining room, kitchen, two bedrooms and a bathroom.

Ground Floor

Flat 10a: Living room/kitchen, three bedrooms and a bathroom. Flat 1: Living room/kitchen, two bedrooms and a bathroom.

First Floor

Flat 2: Living room/kitchen, two bedrooms and a bathroom.

Second Floor

Flat 3: Living room/kitchen, two bedrooms and a bathroom.

Externally

Front and rear yard.

Additional Information

Council Tax

Bradford - each flat Band A

EPC Ratings

Flat 10b: D Flat 10a: C Flat 1: C Flat 2: B Flat 3: D

Tenure

Freehold

Charges and Payments

In addition to the deposit Administration Charge: 1.5% inc VAT of the purchase price subject to a minimum of £2,100 inc VAT. Searches: £360 inc VAT.

Important Notice to Prospective Buyers:

We draw your attention to the Special Conditions of Sale within the Legal Pack, referring to other charges in addition to the purchase price which may become payable. Such costs may include Search Fees, reimbursement of Sellers costs and Legal Fees, and Transfer Fees amongst others.

Additional Fees

Administration Charge - See above

Disbursements - Please see the legal pack for any disbursements listed that may become payable by the purchaser on completion.

View Larger Map

Disclaimer: The map preview provided above is for general guidance only and may not accurately reflect the exact location or surrounding buildings. Prospective buyers and interested parties are strongly advised to independently verify the precise location and surroundings before bidding.