For Sale By Auction | 12:00, 25 March 2026 | Lot 35

11 Farndale Gardens, Leeds, West Yorkshire LS14 5BU

*Guide | £110,000 (plus fees)

  • Terraced House
  • 3 Bedrooms

Call the team on 0113 393 3482 for more information

Auction Date

Wed 25/03/2026

Auction Time

12:00

Auction Venue

Live Stream

This three bedroom through terrace with off-street parking and outside space is offered for sale via traditional auction. Whilst the property would benefit from some internal improvements, this would make a great addition to a rental portfolio. Situated to the East of Leeds City Centre LS14 enjoys a good range of local amenities with convenient transportation links to the A58 Wetherby Road, A64 York Road, Leeds Outer Ring Road, the A1/M1 Link Road, and East Leeds Orbital Route. Good vehicular access to Crossgates with its wealth of amenities including the Crossgates Shopping Centre, pubs, restaurants, micro bars, and local Railway Station. Further shopping centres can be found at Seacroft which also has a bus station and The Springs at Thorpe Park. Locally there is also JD gym, a veterinary surgery, Ninja Warriors UK and school and nurseries. We believe the property is of Parkwall construction with interested parties advised to do their own research in this regard prior to bidding.

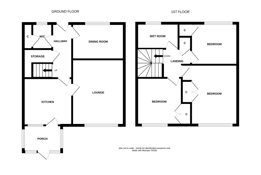
Ground Floor

Porch, lounge, kitchen, dining room, wc and storage cupboard.

First Floor

Three bedrooms and wet room.

Externally

Off street parking and front and rear yard.

ADDITIONAL INFORMATION

Council Tax

Band A.

EPC Rating

E

Tenure

Freehold.

Charges & Payments

In addition to the deposit Administration Charge: 1.5% inc VAT of the purchase price subject to a minimum of £2,100 inc VAT.

Important Notice to Prospective Buyers:

We draw your attention to the Special Conditions of Sale within the Legal Pack, referring to other charges in addition to the purchase price which may become payable. Such costs may include Search Fees, reimbursement of Sellers costs and Legal Fees, and Transfer Fees amongst others.

Additional Fees

Administration Charge - See above

Disbursements - Please see the legal pack for any disbursements listed that may become payable by the purchaser on completion.

View Larger Map

Disclaimer: The map preview provided above is for general guidance only and may not accurately reflect the exact location or surrounding buildings. Prospective buyers and interested parties are strongly advised to independently verify the precise location and surroundings before bidding.