For Sale By Auction | 12:00, 25 March 2026 | Lot 19

Flats 1-3, 3 Carter Avenue, Leeds , West Yorkshire LS15 7AJ

*Guide | £265,000 (plus fees)

  • Terraced House

Call the team on 0113 393 3482 for more information

Auction Date

Wed 25/03/2026

Auction Time

12:00

Auction Venue

Live Stream

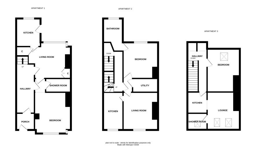
This spacious end terrace property converted into three self-contained apartments is offered for sale via traditional auction. The property is currently fully occupied generating a gross rental income of £25,980 per annum making this a fantastic addition to a rental portfolio. The property is ideally located close to the heart of Crossgates and within walking distance to the train station. The property benefits also from off street parking to the rear, double glazing and gas central heating throughout.

Ground Floor

Kitchen, Living room, Bedroom, Bathroom

First Floor

Kitchen, Living room, Bedroom, Bathroom

Second Floor

Kitchen, Living room, Bedroom, Bathroom

Additional Information

Council Tax

Flat 1 - Band A Flat 2 - Band A Flat 3 - Band A

EPC Ratings

Flat 1 - D Flat 2 - E Flat 3 - C

Tenure

Freehold

Charges and Payments

In addition to the deposit Administration Charge: 1.5% inc VAT of the purchase price subject to a minimum of £2,100 inc VAT.

Important Notice to Prospective Buyers:

We draw your attention to the Special Conditions of Sale within the Legal Pack, referring to other charges in addition to the purchase price which may become payable. Such costs may include Search Fees, reimbursement of Sellers costs and Legal Fees, and Transfer Fees amongst others.

Additional Fees

Administration Charge - See above

Disbursements - Please see the legal pack for any disbursements listed that may become payable by the purchaser on completion.

View Larger Map

Disclaimer: The map preview provided above is for general guidance only and may not accurately reflect the exact location or surrounding buildings. Prospective buyers and interested parties are strongly advised to independently verify the precise location and surroundings before bidding.