For Sale By Auction | 12:00, 25 March 2026 | Lot 48

458 Killinghall Road, Bradford, West Yorkshire BD2 4SL

*Guide | £90,000 (plus fees)

  • Mixed Use

Call the team on 0113 393 3482 for more information

Auction Date

Wed 25/03/2026

Auction Time

12:00

Auction Venue

Live Stream

This vacant commercial/mixed use property is offered for sale via traditional auction. The property does require some internal renovation but would be a great purchase for an owner occupier or addition to a portfolio. The property is located on the prominent Killinghall Road within close proximity to a number of local amenities including shops, supermarkets, petrol stations and more making it an ideal first time buyers home and/or the perfect buy to let investment property.

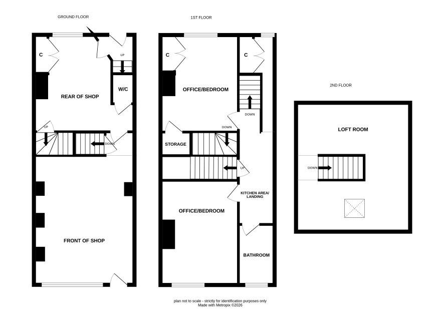
Lower Ground Floor

Cellar.

Ground Floor

Front of shop, rear of shop and wc.

First Floor

Two bedrooms and bathroom.

Second Floor

Loft room.

Externally

Rear yard.

Additional Information

Local Authority

Bradford

EPC Rating

E.

Charges & Payments

In addition to the deposit Administration Charge: 1.5% inc VAT of the purchase price subject to a minimum of £2,100 inc VAT.

Important Notice to Prospective Buyers:

We draw your attention to the Special Conditions of Sale within the Legal Pack, referring to other charges in addition to the purchase price which may become payable. Such costs may include Search Fees, reimbursement of Sellers costs and Legal Fees, and Transfer Fees amongst others.

Additional Fees

Administration Charge - See above

Disbursements - Please see the legal pack for any disbursements listed that may become payable by the purchaser on completion.

View Larger Map

Disclaimer: The map preview provided above is for general guidance only and may not accurately reflect the exact location or surrounding buildings. Prospective buyers and interested parties are strongly advised to independently verify the precise location and surroundings before bidding.