For Sale By Auction | 12:00, 25 March 2026 | Lot 12

Land lying to the south of Tong Lane , Bradford, West Yorkshire BD4 0RT

*Guide | £16,500 (plus fees)

  • Plot

Call the team on 0113 393 3482 for more information

Auction Date

Wed 25/03/2026

Auction Time

12:00

Auction Venue

Live Stream

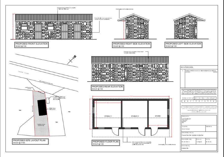
This vacant freehold plot of land is offered for sale via traditional auction. The land also benefits from approved planning permission for the construction of a detached single story stabling and storage block and further information can be located on Bradford City Council planning portal using references 24/00771/FUL & 24/00771/NMA01. Longer term there may be an angle for residential development on the site, subject to the passing of the relevant planning requirements. The ever-popular village of Tong nestles in a rural setting close to both Leeds and Bradford city centres, making this an ideal setting for the commuter who desires a residence that is well-connected to commercial districts but provides a traditional countryside feel.

Additional Information

Local Authority

Bradford

Tenure

Freehold

Charges and Payments

In addition to the deposit Administration Charge: 1.5% inc VAT of the purchase price subject to a minimum of £2,100 inc VAT. Searches: £900 inc VAT.

Important Notice to Prospective Buyers:

We draw your attention to the Special Conditions of Sale within the Legal Pack, referring to other charges in addition to the purchase price which may become payable. Such costs may include Search Fees, reimbursement of Sellers costs and Legal Fees, and Transfer Fees amongst others.

Additional Fees

Administration Charge - See above

Disbursements - Please see the legal pack for any disbursements listed that may become payable by the purchaser on completion.

View Larger Map

Disclaimer: The map preview provided above is for general guidance only and may not accurately reflect the exact location or surrounding buildings. Prospective buyers and interested parties are strongly advised to independently verify the precise location and surroundings before bidding.