For Sale By Auction | 12:00, 13 May 2026

97 Easterly Road, Leeds, West Yorkshire LS8 2TP

*Guide | £180,000 (plus fees)

  • Semi-Detached House
  • 3 Bedrooms

Call the team on 0113 393 3482 for more information

Auction Date

Wed 13/05/2026

Auction Time

12:00

Auction Venue

Live Stream

This three bedroom semi detached property with driveway, gardens and garage is offered for sale via traditional auction. The property does require renovation throughout but would make a great project or addition to a rental portfolio. Please note we are currently awaiting confirmation from the seller if the property will be sold with vacant possesion or occupied. Located within easy reach of local amenities, schools, parks and transport links into Leeds city centre, this property combines space, location and future potential.

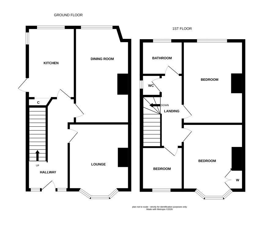
Ground Floor

Lounge, dining room and kitchen

First Floor

Three bedrooms, WC and bathroom

Externally

Driveway, gardens to front and rear, garage.

Additional Information

Council Tax

Leeds City Council - Band C

EPC Rating

E

Tenure

Freehold

Charges and Payments

In addition to the deposit Administration Charge: 1.5% inc VAT of the purchase price subject to a minimum of £2,100 inc VAT. Searches £360 inc VAT.

Important Notice to Prospective Buyers:

We draw your attention to the Special Conditions of Sale within the Legal Pack, referring to other charges in addition to the purchase price which may become payable. Such costs may include Search Fees, reimbursement of Sellers costs and Legal Fees, and Transfer Fees amongst others.

Additional Fees

Administration Charge - See above

Disbursements - Please see the legal pack for any disbursements listed that may become payable by the purchaser on completion.

View Larger Map

Disclaimer: The map preview provided above is for general guidance only and may not accurately reflect the exact location or surrounding buildings. Prospective buyers and interested parties are strongly advised to independently verify the precise location and surroundings before bidding.