For Sale By Auction | 12:00, 13 May 2026 | Lot 5

99 Park Lane, Keighley, West Yorkshire BD21 4RH

*Guide | £47,000 (plus fees)

  • Semi-Detached House
  • 3 Bedrooms

Call the team on 0113 393 3482 for more information

Auction Date

Wed 13/05/2026

Auction Time

12:00

Auction Venue

Live Stream

This three bedroom semi detached property with driveway, garage and garden space is offered for sale via traditional auction. The property does require full renovation throughout, but would make a great project or addition to a rental portfolio. The property is located just a five minute drive from the Airedale Shopping Centre as well as a busy and vibrant local market the town has a wide range of amenities to suit all local residents. Keighley is easily accessible by train or bus from Leeds, Bradford and Halifax with a new bus station adjacent to the Airedale Centre. Interested parties should note that the property is showing signs of structural movement, buyers are advised to do their own research in this regard

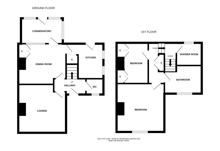
Ground Floor

Lounge, dining room, kitchen, wc and conservatory.

First Floor

Three bedrooms and shower room.

Externally

Front and rear garden, driveway and garage.

Additional Information

Council Tax

Band A.

EPC

Rating E.

Tenure

Freehold.

Charges & Payments

In addition to the deposit Administration Charge: 1.5% inc VAT of the purchase price subject to a minimum of £2,100 inc VAT. Searches £360 inc VAT

Important Notice to Prospective Buyers:

We draw your attention to the Special Conditions of Sale within the Legal Pack, referring to other charges in addition to the purchase price which may become payable. Such costs may include Search Fees, reimbursement of Sellers costs and Legal Fees, and Transfer Fees amongst others.

Additional Fees

Administration Charge - See above

Disbursements - Please see the legal pack for any disbursements listed that may become payable by the purchaser on completion.

View Larger Map

Disclaimer: The map preview provided above is for general guidance only and may not accurately reflect the exact location or surrounding buildings. Prospective buyers and interested parties are strongly advised to independently verify the precise location and surroundings before bidding.