Withdrawn | Lot 17

1A Annisgarth House, Annisgarth, Windermere, Cumbria LA23 2HF

Withdrawn

  • Apartment
  • 2 Bedrooms
  • Tenure: See Legal Pack

Call the team on 01228 510 552 for more information

Auction Date

Thu 05/09/2024

Auction Time

12:00

Auction Venue

The Halston Hotel, 20-34 Warwick Road • CA1 1AB

Duplex apartment in sought after location

This duplex apartment presents an exceptional development opportunity for those with a discerning eye and a vision for perfection. Behold breathtaking views across Lake Windermere, with panoramic vistas stretching towards the Langdale Pikes and the Fairfield horseshoe, providing an awe-inspiring backdrop for every-day living. Boasting a generously sized kitchen and a spectacular sitting room diner flooded with natural light. Two double bedrooms and three attic rooms with potential for conversion into additional bedrooms ensure flexibility for varying family needs, alongside a family bathroom and convenient shower room. With an internal floor area of approximately 1980 ft²/184 m², this home provides ample space for modern living, encouraging a harmonious balance of comfort, style, and potential for bespoke customisation to suit individual preferences and lifestyle requirements.

Tenure

See Legal Pack

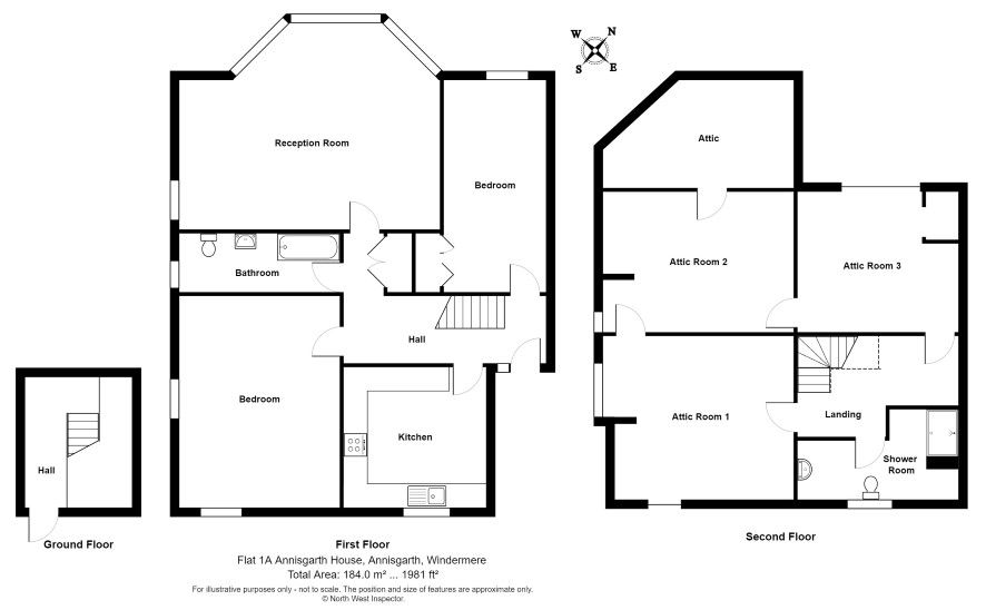
Ground Floor

Hall

First Floor

Kitchen 11'7 x 11'2 Sitting Room 21'11 x 15'4 Hallway 16'11 x 5'9 Bedroom 17'11 x 13'4 Bedroom 15'10 x 8'7 Bathroom 12' x 4'8

Second Floor

Landing Shower Room 9'9 x 5'1 Attic Loft Space 15'8 x 13'8 Attic Loft Space 15'11 x 11'9 Attic Loft Space 13'7 x 11'9

Directions

From Windermere proceed along New Road and turn left into Craig Walk immediately before the Police Station. Continue to take the second left turn into Annisgarth Drive. Follow the road around to the left and the drive for 1 Annisgarth is located on the left

Viewing

To view, please call Thomson Hayton Winkley on 015394 47825

Energy Efficiency Rating (EPC)

Current Rating E

Services

Interested parties are invited to make their own enquiries to the relevant authorities as to the availability of the services.

Local Authority

South Lakeland District Council

Offered in association with

Thomson Hayton Winkley

Important Notice to Prospective Buyers:

We draw your attention to the Special Conditions of Sale within the Legal Pack, referring to other charges in addition to the purchase price which may become payable. Such costs may include Search Fees, reimbursement of Sellers costs and Legal Fees, and Transfer Fees amongst others.

Additional Fees

Administration Charge - £1200 inc VAT payable on exchange of contracts.

Disbursements - Please see the legal pack for any disbursements listed that may become payable by the purchaser on completion.

View Larger Map

Disclaimer: The map preview provided above is for general guidance only and may not accurately reflect the exact location or surrounding buildings. Prospective buyers and interested parties are strongly advised to independently verify the precise location and surroundings before bidding.