For Sale By Auction | 12:00, 17 July 2025 | Lot 56

Bethesda Church , Main Street, Brampton, Cumbria CA8 1SH

Sold £60,000

  • Place of Worship
  • Tenure: See Legal Pack

Call the team on 01228 510 552 for more information

Auction Date

Thu 17/07/2025

Auction Time

12:00

Auction Venue

The Halston Hotel, 20-34 Warwick Road • CA1 1AB

Viewing Times:

Sun 22 Jun

13:45-14:15

Sat 28 Jun

15:45-16:15

Sat 5 Jul

11:15-11:45

Sat 12 Jul

13:15-13:45

Former chapel in town centre

A former Methodist Chapel, last used as The Bethesda Evangelical Church who have moved to larger premises., occupying a prominent position near the centre of this busy market town. The property is suitable for a variety of uses subject to planning consent. Interested parties should make their own enquiries to Cumberland Council regarding their proposed use.

Tenure

See Legal Pack

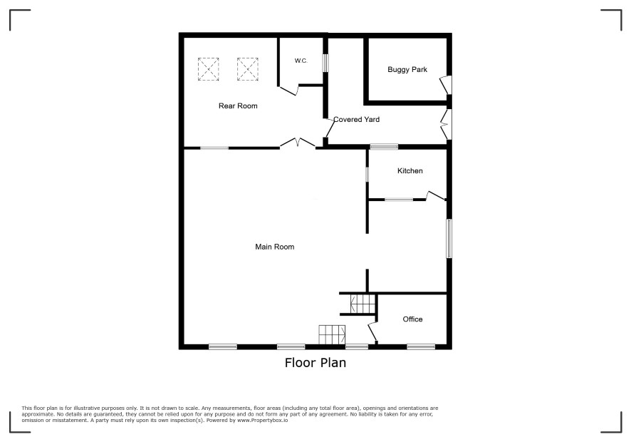
Lower Ground Floor

Vestibule, WC, Store and stairs up to:-

Main Room 26'9 x 25'

Room 12'6 x 11'

Kitchen 10'9 x 6'9

Rear Room 14'3 x 14'

Disabled WC

Office 9'9 x 7'

Outside

Covered side yard and buggy park.

Services

Interested parties are invited to make their own enquiries to the relevant authorities as to the availability of the services.

Local Authority

Cumberland Council

Solicitors

Edward Connor Solicitors, Ref: Richard Howes, Tel: 01858 411568

Important Notice to Prospective Buyers:

We draw your attention to the Special Conditions of Sale within the Legal Pack, referring to other charges in addition to the purchase price which may become payable. Such costs may include Search Fees, reimbursement of Sellers costs and Legal Fees, and Transfer Fees amongst others.

Additional Fees

Administration Charge - 1.2% inc VAT of the purchase price, subject to a minimum of £1500 inc VAT, payable on exchange of contracts.

Disbursements - Please see the legal pack for any disbursements listed that may become payable by the purchaser on completion.

View Larger Map

Disclaimer: The map preview provided above is for general guidance only and may not accurately reflect the exact location or surrounding buildings. Prospective buyers and interested parties are strongly advised to independently verify the precise location and surroundings before bidding.