For Sale By Auction | 12:00, 10 December 2025

1 Parkside Road, Kendal, Cumbria LA9 7DU

*Guide | £200,000 - £300,000 (plus fees)

  • Detached House
  • 4 Bedrooms
  • Tenure: See Legal Pack

Call the team on 01228 510 552 for more information

Auction Date

Wed 10/12/2025

Auction Time

12:00

Auction Venue

The Halston Hotel, 20-34 Warwick Road • CA1 1AB

Traditional, stone built, detached house.

Detached, four bedroom, traditional, stone built family home. Located in the heart of the popular town of Kendal with easy access to The Lake District National Park. Compromises of Entrance Hall, Two Reception Rooms, Lounge and Kitchen. Upstairs there are 4 bedrooms and a shower room. Outside there is a good sized rear garden with garage and a parking space. Property is in need of full modernisation.

Tenure

See Legal Pack

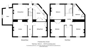
Ground Floor

Hallway Lounge - 12'9 x 12'6 Sitting Room - 12'6 x 11'9 Dining Room - 14'9 x 12'6 Kitchen - 14'9 x 9'3 (at widest)

First Floor

Landing Bedroom - 12'6 x 10'6 Bedroom - 12'6 x 11'3 Bedroom - 12'6 x 12'3 Bedroom - 9'3 x 6'3 Bathroom - 13'3 x 7' (at widest)

Outside

Rear garden Garage Parking space

Viewing

To view, please call, Thomson Hayton and Winkley on 01539 815700.

Energy Efficiency Rating (EPC)

Current Rating G

Services

Interested parties are invited to make their own enquiries to the relevant authorities as to the availability of the services.

Local Authority

Westmorland and Furness Council

Solicitors

Thomson Hayton Winkley, 25 Crescent Road, Ref: Zoe Gibson, Tel: 015394 46585

Offered in association with

Thomson Hayton Winkley

Important Notice to Prospective Buyers:

We draw your attention to the Special Conditions of Sale within the Legal Pack, referring to other charges in addition to the purchase price which may become payable. Such costs may include Search Fees, reimbursement of Sellers costs and Legal Fees, and Transfer Fees amongst others.

Additional Fees

Administration Charge - 1.2% inc VAT of the purchase price, subject to a minimum of £1500 inc VAT, payable on exchange of contracts.

Disbursements - Please see the legal pack for any disbursements listed that may become payable by the purchaser on completion.

View Larger Map

Disclaimer: The map preview provided above is for general guidance only and may not accurately reflect the exact location or surrounding buildings. Prospective buyers and interested parties are strongly advised to independently verify the precise location and surroundings before bidding.