For Sale By Auction | 11:00, 26 March 2025 | Lot 67

The Oaks, Cranley Road, Redlingfield, Eye, Suffolk IP23 7NZ

Sold £350,000

  • Detached Bungalow
  • 3 Bedrooms
  • Tenure: Freehold

Call the team on 01473 558 888 for more information

Auction Date

Wed 26/03/2025

Auction Time

11:00

Auction Venue

Livestream Auction

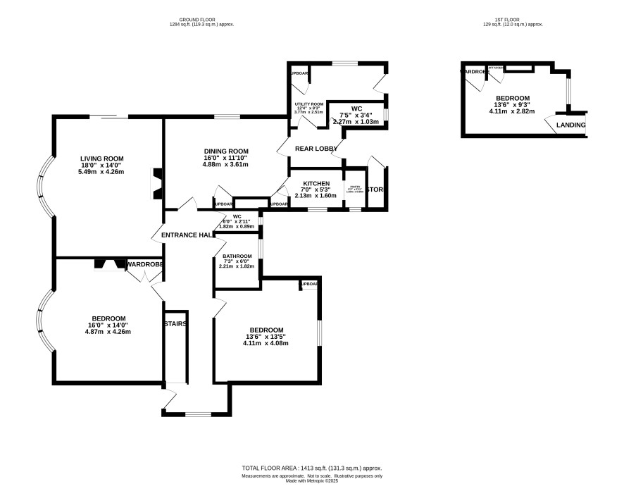
A spacious 1950s built detached bungalow in a large plot

Standing in a fraction under 3/4 of an acre in a delightful rural setting surrounded by farmland is this twin bay 1952 built detached bungalow. The property requires general refurbishment and offers particularly well proportioned accommodation including an 18' living room, separate dining room and three bedrooms (one on the first floor). The gardens are a particular feature being mature and private along with plenty of parking space. Having been in the same family for many years this is a rare opportunity that shouldn't be missed.

Tenure

Freehold

Council Tax Band

E

Viewing

Open Viewings have been scheduled as follows: Tues 25th February - 10.30am to 11.30am Thurs 6th March - 1.00pm to 2.00pm Fri 14th March - 11.30am to 12.30pm BOOKING AN APPOINTMENT IS ESSENTIAL Please call 01473 558888 to confirm your attendance

Energy Efficiency Rating (EPC)

Current Rating F

Services

Interested parties are requested to make their own enquiries to the relevant authorities as to the availability of services.

Local Authority

Mid Suffolk District Council

Solicitors

Marshall Hatchick (Saxmundham), Ref: James Robbins, Tel: 01728 453595

Important Notice to Prospective Buyers:

We draw your attention to the Special Conditions of Sale within the Legal Pack, referring to other charges in addition to the purchase price which may become payable. Such costs may include Search Fees, reimbursement of Sellers costs and Legal Fees, and Transfer Fees amongst others.

Additional Fees

Buyer's Premium - £1500 inc VAT payable on exchange of contracts.

Administration Charge - £1200 inc VAT payable on exchange of contracts.

Disbursements - Please see the legal pack for any disbursements listed that may become payable by the purchaser on completion.

View Larger Map

Disclaimer: The map preview provided above is for general guidance only and may not accurately reflect the exact location or surrounding buildings. Prospective buyers and interested parties are strongly advised to independently verify the precise location and surroundings before bidding.