For Sale By Auction | 11:00, 26 March 2025 | Lot 68

52 East Street, Sudbury CO10 2TR

Sold £159,000

  • Terraced House
  • Tenure: Freehold

Call the team on 01473 558 888 for more information

Auction Date

Wed 26/03/2025

Auction Time

11:00

Auction Venue

Livestream Auction

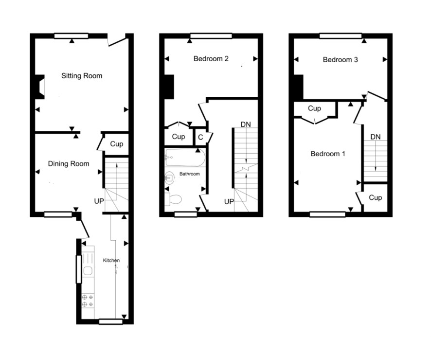
Grade II listed, three bedroom terraced property in the centre of Sudbury in need of cosmetic works throughout.

Set across three floors, this property features a spacious open-plan lounge and dining area, a well-proportioned kitchen with direct access to the garden, three good sized bedrooms, and a family bathroom. While the property requires cosmetic updating throughout, it presents an excellent opportunity to create a wonderful family home or investment for potential landlords. Situated in Sudbury, the town offers local shops, restaurants, bars and lovely walking routes around the area.

Tenure

Freehold

OPEN HOUSE DATES

The next open house date is Monday 10th March at 11:00am. Please ensure to contact the office to confirm attendance.

Energy Efficiency Rating (EPC)

Current Rating D

Services

Interested parties are requested to make their own enquiries to the relevant authorities as to the availability of services.

Local Authority

Babergh District Council

Solicitors

West Suffolk - Legal, Ref: Hannah Evans, Tel: 01284 757141

Offered in association with

CMK Real Estate

Important Notice to Prospective Buyers:

We draw your attention to the Special Conditions of Sale within the Legal Pack, referring to other charges in addition to the purchase price which may become payable. Such costs may include Search Fees, reimbursement of Sellers costs and Legal Fees, and Transfer Fees amongst others.

Additional Fees

Buyer's Premium - £1440 inc VAT payable on exchange of contracts.

Administration Charge - £1200 inc VAT payable on exchange of contracts.

Disbursements - Please see the legal pack for any disbursements listed that may become payable by the purchaser on completion.

View Larger Map

Disclaimer: The map preview provided above is for general guidance only and may not accurately reflect the exact location or surrounding buildings. Prospective buyers and interested parties are strongly advised to independently verify the precise location and surroundings before bidding.