Sold Prior | Lot 57

145 Holt Road, Fakenham, Norfolk NR21 8JF

Sold Prior

  • Detached House
  • 4 Bedrooms
  • Tenure: Freehold

Call the team on 01603 505 100 for more information

Auction Date

Wed 26/03/2025

Auction Time

11:00

Auction Venue

Livestream Auction

A four bedroom detached and individual family residence set in mature grounds of 0.40 acre with ample offroad parking with garage, workshop and stores.

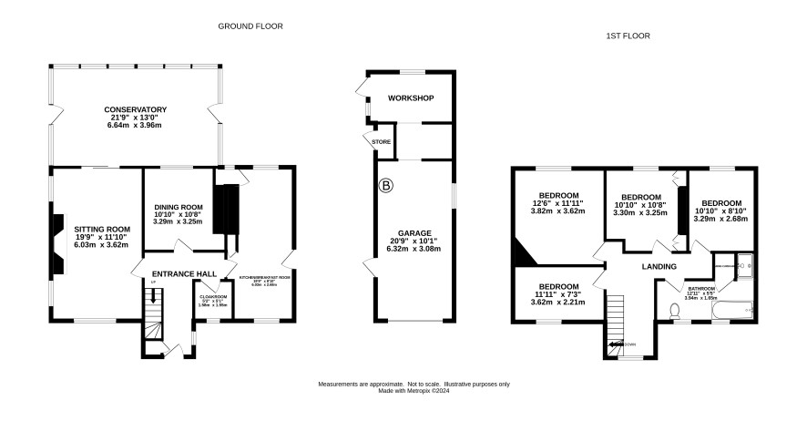
This four bedroom detached family home, situated on a generous plot measuring 0.40 acre. and offered with vacant possession. The property now needs a programme of modernisation to realise its full potential. The accommodation arranged over two floors an the ground floor: sitting room, conservatory, dining room, separate cloakroom and kitchen/breakfast room. On the first floor there are four bedrooms and a bath/shower room. The property is set in its own ground with gravel parking to the front leading to the garage with workshop area and stores. Situated within 1/2 mile from the town centre and walking distance of two supermarkets and doctors surgery.

Tenure

Freehold

Ground Floor

Sitting room, conservatory, dining room, separate cloakroom and kitchen/breakfast room

First Floor

Galleried landing, four bedrooms and a bath/shower room.

Outside

Situated on a generous plot measuring 0.40 acre.with gravel parking to the front leading to the garage with workshop area and stores.

Services

Gas fred cental heating, mains water and drainage

Council Tax Band

E

Viewing

Viewings are currently being arranged for Thursday 13th March 2025. Please call the office to arrange. Tel 01603 505100

Energy Efficiency Rating (EPC)

Current Rating D

Services

Interested parties are requested to make their own enquiries to the relevant authorities as to the availability of services.

Local Authority

North Norfolk District Council

Solicitors

Ward Gethin Archer (Chatteris), Ref: Lauren Dilworth, Tel: 01354 691814

Important Notice to Prospective Buyers:

We draw your attention to the Special Conditions of Sale within the Legal Pack, referring to other charges in addition to the purchase price which may become payable. Such costs may include Search Fees, reimbursement of Sellers costs and Legal Fees, and Transfer Fees amongst others.

Additional Fees

Buyer's Premium - £600 inc VAT payable on exchange of contracts.

Administration Charge - £1200 inc VAT payable on exchange of contracts.

Disbursements - Please see the legal pack for any disbursements listed that may become payable by the purchaser on completion.

View Larger Map

Disclaimer: The map preview provided above is for general guidance only and may not accurately reflect the exact location or surrounding buildings. Prospective buyers and interested parties are strongly advised to independently verify the precise location and surroundings before bidding.