For Sale By Auction | 11:00, 26 March 2025 | Lot 57a

115 North Park, Fakenham, Norfolk NR21 9RJ

Sold £180,000

  • Semi-Detached Bungalow
  • Tenure: Freehold

Call the team on 01603 505 100 for more information

Auction Date

Wed 26/03/2025

Auction Time

11:00

Auction Venue

Livestream Auction

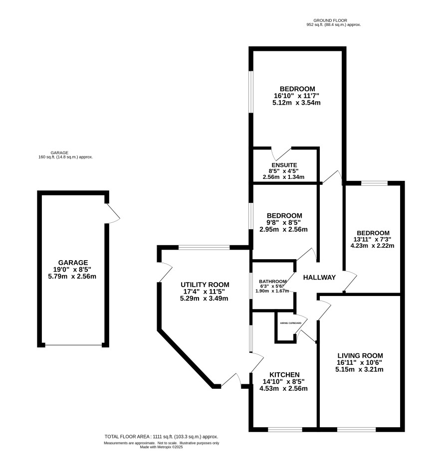
Three bedroom semi-detached bungalow on a corner plot in cul-de-sac location.

This semi-detached bungalow situated at the end of a cul-de-sac in the popular North Park area of Fakenham, within walking distance of the town centre, is offered for sale with vacant possession. The property would benefit from a programme of modernisation with spacious accommodation comprising a useful utility/boot room, kitchen and sitting/dining room with 3 bedrooms, 1 with an en suite shower room and a bathroom. Further benefits include UPVC double glazed windows and doors and night storage heating. Outside, there is driveway parking with a garage and a low maintenance garden to the rear.

Tenure

Freehold

Council Tax Band

B

Viewings

Individual viewings can be arranged and the next are on the next are Monday 10th March - please call to arrange the next available slot.

Energy Efficiency Rating (EPC)

Current Rating D

Services

Interested parties are requested to make their own enquiries to the relevant authorities as to the availability of services.

Local Authority

North Norfolk District Council

Solicitors

Spire Solicitors LLP (Norwich), Ref: Tracy Guest, Tel: 01603 886221

Important Notice to Prospective Buyers:

We draw your attention to the Special Conditions of Sale within the Legal Pack, referring to other charges in addition to the purchase price which may become payable. Such costs may include Search Fees, reimbursement of Sellers costs and Legal Fees, and Transfer Fees amongst others.

Additional Fees

Buyer's Premium - £600 inc VAT payable on exchange of contracts.

Administration Charge - £1200 inc VAT payable on exchange of contracts.

Disbursements - Please see the legal pack for any disbursements listed that may become payable by the purchaser on completion.

View Larger Map

Disclaimer: The map preview provided above is for general guidance only and may not accurately reflect the exact location or surrounding buildings. Prospective buyers and interested parties are strongly advised to independently verify the precise location and surroundings before bidding.