Sold Prior | Lot 58

130 Foxhall Road, Ipswich, Suffolk IP3 8HW

Sold Prior

  • Semi-Detached House
  • 3 Bedrooms
  • Tenure: Freehold

Call the team on 01473 558 888 for more information

Auction Date

Wed 26/03/2025

Auction Time

11:00

Auction Venue

Livestream Auction

A spacious semi-detached house in a popular East Ipswich location

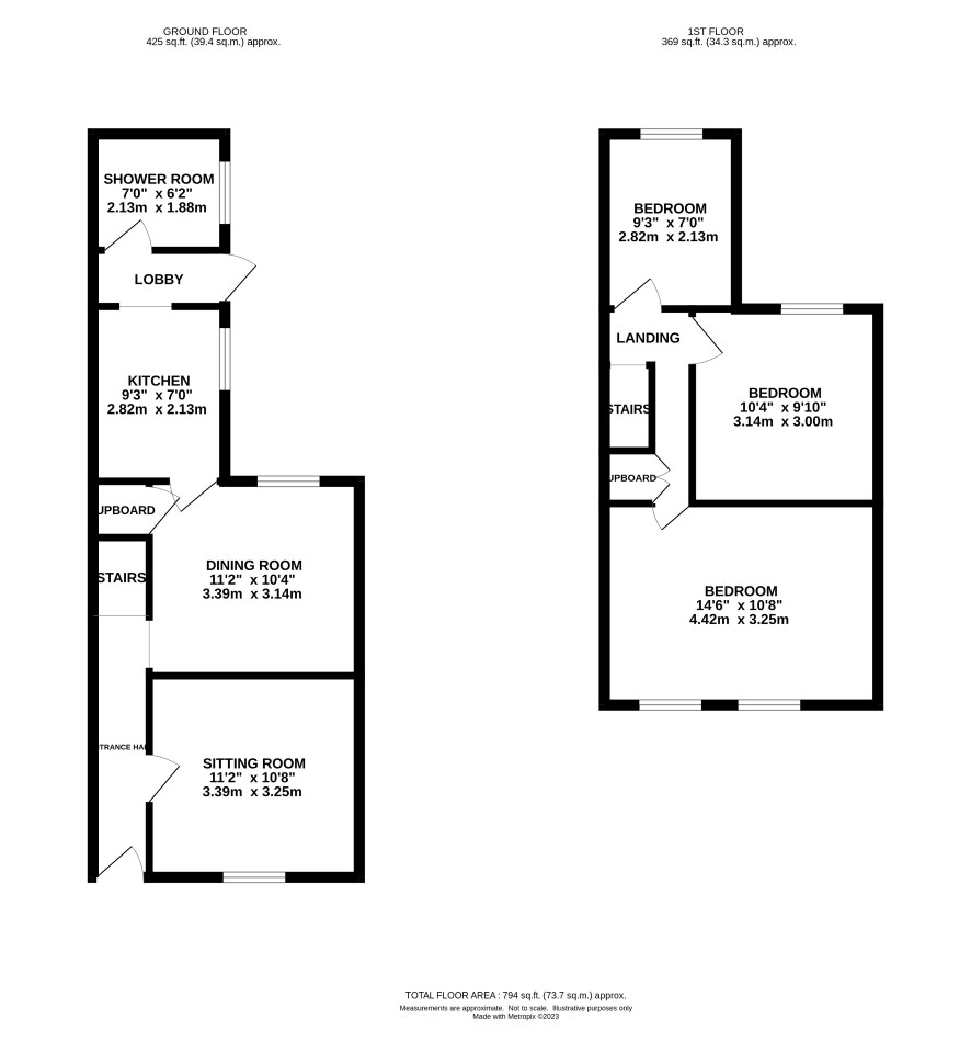
A well proportioned and recently re-decorated Victorian semi-detached house which is presented in 'turn key' order and ready for immediate occupation. The property offers three bedroom, two reception room accommodation with double glazing, gas central heating, off road parking to the front and an enclosed south facing rear garden with decking. Ideally suited to a family it is considered to also have potential for a four letting room HMO (subject to any necessary consent).

Tenure

Freehold

Council Tax Band

B

Viewing

Open Viewing has been scheduled as follows: Tues 18th March - 11.00 to 11.30am BOOKING AN APPOINTMENT IS ESSENTIAL Please call 01473 558888 to confirm your attendance

Energy Efficiency Rating (EPC)

Current Rating D

Services

Interested parties are requested to make their own enquiries to the relevant authorities as to the availability of services.

Local Authority

Ipswich Borough Council

Solicitors

Andrew Jacobs Conveyancing, Ref: Andrew Jacobs, Tel: 01473 333323

Important Notice to Prospective Buyers:

We draw your attention to the Special Conditions of Sale within the Legal Pack, referring to other charges in addition to the purchase price which may become payable. Such costs may include Search Fees, reimbursement of Sellers costs and Legal Fees, and Transfer Fees amongst others.

Additional Fees

Buyer's Premium - £900 inc VAT payable on exchange of contracts.

Administration Charge - £1200 inc VAT payable on exchange of contracts.

Disbursements - Please see the legal pack for any disbursements listed that may become payable by the purchaser on completion.

View Larger Map

Disclaimer: The map preview provided above is for general guidance only and may not accurately reflect the exact location or surrounding buildings. Prospective buyers and interested parties are strongly advised to independently verify the precise location and surroundings before bidding.