For Sale By Auction | 10:00, 18 June 2025 | Lot 53

48 Wisbech Road, King's Lynn, Norfolk PE30 5LP

Sold £93,000

  • End of Terrace House
  • 2 Bedrooms
  • Tenure: Freehold

Call the team on 01553 777 773 for more information

Auction Date

Wed 18/06/2025

Auction Time

10:00

Auction Venue

Livestream Auction

A two bedroom end of terrace house available with vacant possession

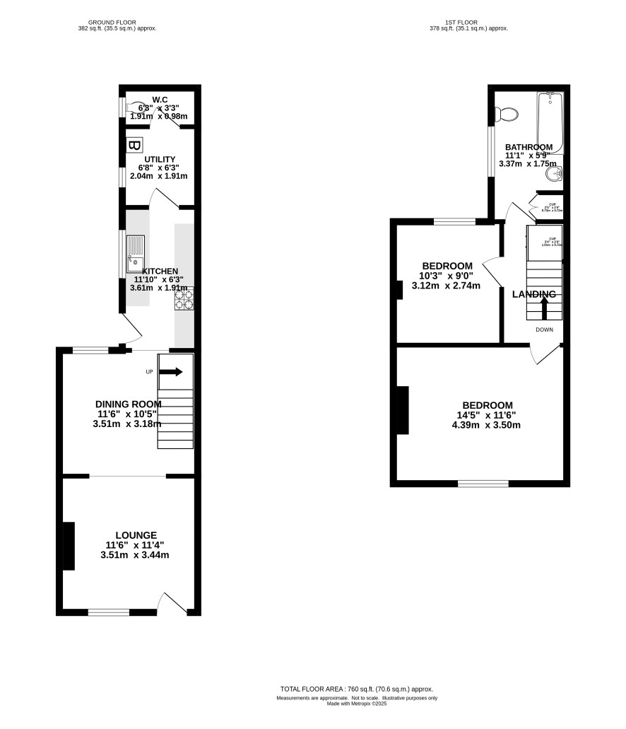
This two bedroom end of terrace house is located in South Lynn and is in need of some modernisation. The house is available with vacant possession and briefly comprises lounge/ dining room, kitchen, utility and cloakroom to the ground floor. On the first floor there are two bedrooms and a bathroom. Outside there is a courtyard garden. The property is located on the outskirts of Kings Lynn town centre near the South Gates roundabout. Kings Lynn offers a wide range of shopping facilities as well as bus station and mainline railway link to Cambridge and London Kings Cross station.

Tenure

Freehold

Ground Floor

Lounge/ dining room, kitchen, utility room, cloakroom

First Floor

Two bedrooms, bathroom

Outside

Courtyard garden

Council Tax Band

A

Energy Efficiency Rating (EPC)

Current Rating D

Services

Interested parties are requested to make their own enquiries to the relevant authorities as to the availability of services.

Local Authority

Kings Lynn and West Norfolk Borough Council

Solicitors

Howes Percival (Norwich), Ref: Sophie Charles, Tel: 01603 281977

Important Notice to Prospective Buyers:

We draw your attention to the Special Conditions of Sale within the Legal Pack, referring to other charges in addition to the purchase price which may become payable. Such costs may include Search Fees, reimbursement of Sellers costs and Legal Fees, and Transfer Fees amongst others.

Additional Fees

Buyer's Premium - £1800 inc VAT payable on exchange of contracts.

Administration Charge - £1200 inc VAT payable on exchange of contracts.

Disbursements - Please see the legal pack for any disbursements listed that may become payable by the purchaser on completion.

View Larger Map

Disclaimer: The map preview provided above is for general guidance only and may not accurately reflect the exact location or surrounding buildings. Prospective buyers and interested parties are strongly advised to independently verify the precise location and surroundings before bidding.