Call the team on 01553 777 773 for more information
A four bedroom detached house in need of full modernisation, standing on a plot measuring approximately 0.16 acres (stms)
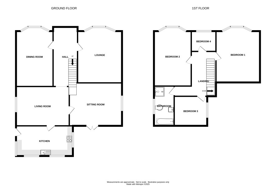
This substantial four bedroom detached house stands on a generous plot measuring approximately 0.16 acres (stms). The house is in need of full modernisation and briefly comprises four reception rooms and kitchen to the ground floor, with four bedrooms and bathroom on the first floor. Outside the majority of the garden area is on the right hand side of the property. The property is located on the outskirts of Kings Lynn town centre near the South Gates roundabout. Kings Lynn offers a wide range of shopping facilities as well as bus station and mainline railway link to Cambridge and London Kings Cross station.
Tenure
Freehold
Ground Floor
Four reception rooms, kitchen
First Floor
Four bedrooms, bathroom
Outside
Gardens to front, side and rear
Council Tax Band
D
Energy Efficiency Rating (EPC)
Current Rating D
Services
Interested parties are requested to make their own enquiries to the relevant authorities as to the availability of services.
Local Authority
Kings Lynn and West Norfolk Borough Council
Solicitors
Howes Percival (Norwich), Ref: Sophie Charles, Tel: 01603 281977
Important Notice to Prospective Buyers:
We draw your attention to the Special Conditions of Sale within the Legal Pack, referring to other charges in addition to the purchase price which may become payable. Such costs may include Search Fees, reimbursement of Sellers costs and Legal Fees, and Transfer Fees amongst others.
Additional Fees
Buyer's Premium - £1800 inc VAT payable on exchange of contracts.
Administration Charge - £1200 inc VAT payable on exchange of contracts.
Disbursements - Please see the legal pack for any disbursements listed that may become payable by the purchaser on completion.
Disclaimer: The map preview provided above is for general guidance only and may not accurately reflect the exact location or surrounding buildings. Prospective buyers and interested parties are strongly advised to independently verify the precise location and surroundings before bidding.