For Sale By Auction | 10:00, 18 June 2025 | Lot 5

17 Buxton Road, Norwich, Norfolk NR3 3HH

Sold £247,500

  • Terraced House
  • 3 Bedrooms
  • Tenure: Freehold

Call the team on 01603 505 100 for more information

Auction Date

Wed 18/06/2025

Auction Time

10:00

Auction Venue

Livestream Auction

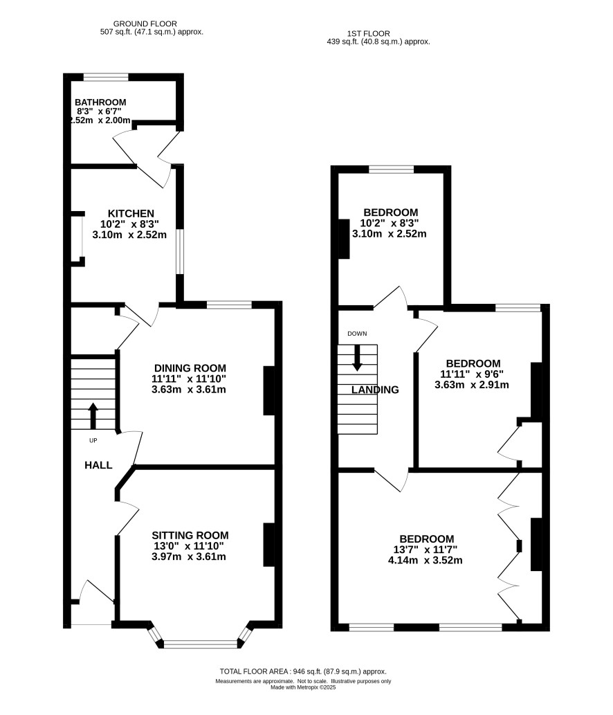
A bay fronted hall terrace house in need of modernisation

Located in a popular north city location this vacant hall entrance terrace house now requires some general updating and redecoration. The property has two reception rooms, kitchen and bathroom on the ground floor and three bedrooms off landing on the first floor. There is a pleasant rear garden and on road parking. Buxton Road is within walking distance of local shops and amenities, the city centre is also within a mile of the property.

Tenure

Freehold

Ground Floor

Hall, bay fronted lounge, dining room, kitchen, rear lobby bathroom

First Floor

Landing, three bedrooms

Outside

Small front garden, sheltered rear garden with garden shed

Council Tax Band

C

Viewings

Open viewings have been arranged and the next are on Tuesday 10th June. To book an appointment please call the Norwich office.

Energy Efficiency Rating (EPC)

Current Rating D

Services

Interested parties are requested to make their own enquiries to the relevant authorities as to the availability of services.

Local Authority

Norwich City Council

Solicitors

Cozens-Hardy LLP, Ref: Beth Browne, Tel: 01603 724684

Offered in association with

Vario Estate Agents

Important Notice to Prospective Buyers:

We draw your attention to the Special Conditions of Sale within the Legal Pack, referring to other charges in addition to the purchase price which may become payable. Such costs may include Search Fees, reimbursement of Sellers costs and Legal Fees, and Transfer Fees amongst others.

Additional Fees

Buyer's Premium - £600 inc VAT payable on exchange of contracts.

Administration Charge - £1200 inc VAT payable on exchange of contracts.

Disbursements - Please see the legal pack for any disbursements listed that may become payable by the purchaser on completion.

View Larger Map

Disclaimer: The map preview provided above is for general guidance only and may not accurately reflect the exact location or surrounding buildings. Prospective buyers and interested parties are strongly advised to independently verify the precise location and surroundings before bidding.