For Sale By Auction | 10:00, 18 June 2025 | Lot 6

38 Barrett Road, Norwich, Norfolk NR1 2HZ

Sold £174,000

  • End of Terrace House
  • 3 Bedrooms
  • Tenure: Freehold

Call the team on 01603 505 100 for more information

Auction Date

Wed 18/06/2025

Auction Time

10:00

Auction Venue

Livestream Auction

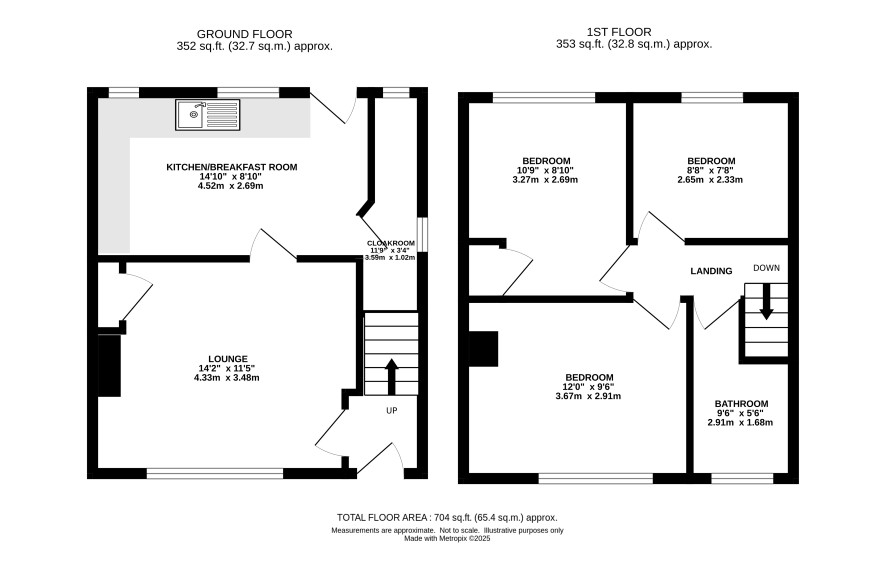
Three bedroom end town house ideal for investment or owner occupation

This ex local authority end town house has been tenanted for a number of years but is now to be sold vacant and Ideal for first purchase or investment. The property has gas central heating sealed unit double glazing and includes three bedrooms and a modern bathroom off the first floor landing. The ground floor lounge opens into a well proportioned kitchen/breakfast room which provides access to the rear garden and a cloakroom. The gardens are well maintained and are fully fenced. Barrett Road is a few steps from local shops and Norfolk County Hall

Tenure

Freehold

Ground Floor

Hall, Lounge, Kitchen/breakfast room, cloakroom

First Floor

Landing, three bedrooms, bathroom

Outside

Front and rear gardens

Council Tax Band

A

Viewings

Open viewings are arranged for Monday 16 June. Please call the Norwich office to book the next available appointment.

Energy Efficiency Rating (EPC)

Current Rating C

Services

Interested parties are requested to make their own enquiries to the relevant authorities as to the availability of services.

Local Authority

Norwich City Council

Solicitors

Fosters, Ref: Samantha Cubitt, Tel: 01603 620508

Important Notice to Prospective Buyers:

We draw your attention to the Special Conditions of Sale within the Legal Pack, referring to other charges in addition to the purchase price which may become payable. Such costs may include Search Fees, reimbursement of Sellers costs and Legal Fees, and Transfer Fees amongst others.

Additional Fees

Buyer's Premium - £600 inc VAT payable on exchange of contracts.

Administration Charge - £1200 inc VAT payable on exchange of contracts.

Disbursements - Please see the legal pack for any disbursements listed that may become payable by the purchaser on completion.

View Larger Map

Disclaimer: The map preview provided above is for general guidance only and may not accurately reflect the exact location or surrounding buildings. Prospective buyers and interested parties are strongly advised to independently verify the precise location and surroundings before bidding.