For Sale By Auction | 09:30, 28 May 2025 | Lot 71

The Annexe, 38 Dracaena Crescent, Hayle, Cornwall, TR27 4EN

*Guide | £135,000+ (plus fees)

  • Detached House
  • 7 Bedrooms
  • Tenure: Freehold

Call the team on 020 7625 9007 for more information

Auction Date

Wed 28/05/2025

Auction Time

09:30

Auction Venue

Live Stream

Viewing Times:

Tue 24 Jun

12:00-12:30

Sat 28 Jun

10:00-10:30

Tue 1 Jul

12:00-12:30

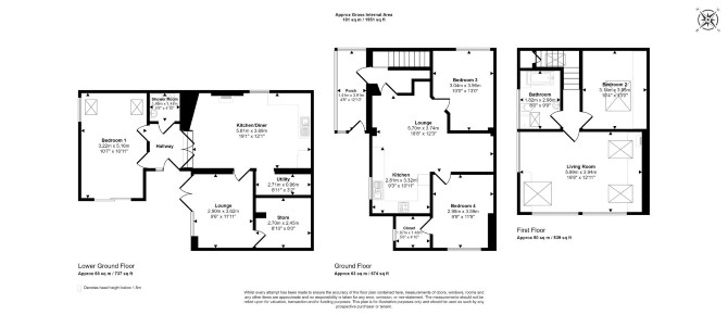
A Vacant Detached Annexe Arranged to Provide Two Self-Contained Flats (1 x Four Bedroom, 1 x Three Bedroom)

The property comprises a detached annexe arranged to provide two self contained flats (1 x four bedroom, 1 x three bedroom).

Tenure

Freehold

Location

The property is situated on a residential road close to local shops and amenities. The open spaces of Hayle Recreation Ground are within easy reach. Transport links are provided by Lelant rail station.

Accommodation

Flat 1 - Split Level Lower Ground and Ground Floors Reception Room with Open-Plan Kitchen Three Bedrooms Bathroom Flat 2 - Split Level Ground and First Floors Two Reception Rooms (One with Open-Plan Kitchen) Four Bedrooms Bathroom

Exterior

The property benefits from off street parking.

Energy Efficiency Rating (EPC)

Current Rating C

Services

Interested parties are requested to make their own enquiries to the relevant authorities as to the availability of services.

Important Notice to Prospective Buyers:

We draw your attention to the Special Conditions of Sale within the Legal Pack, referring to other charges in addition to the purchase price which may become payable. Such costs may include Search Fees, reimbursement of Sellers costs and Legal Fees, and Transfer Fees amongst others.

Additional Fees

Administration Charge - Purchasers will be required to pay an administration fee of £1,500 inc VAT

Disbursements - Please see the legal pack for any disbursements listed that may become payable by the purchaser on completion.

View Larger Map

Disclaimer: The map preview provided above is for general guidance only and may not accurately reflect the exact location or surrounding buildings. Prospective buyers and interested parties are strongly advised to independently verify the precise location and surroundings before bidding.