For Sale By Auction | 09:30, 28 May 2025 | Lot 70A

6 Luton Road, Chatham, Kent, ME4 5AA

*Guide | £275,000+ (plus fees)

  • Mixed Use
  • 4 Bedrooms
  • Tenure: Freehold

Call the team on 020 7625 9007 for more information

Auction Date

Wed 28/05/2025

Auction Time

09:30

Auction Venue

Live Stream

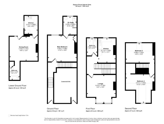
A Mixed Use Investment Arranged to Provide a Ground Floor Retail Unit and Three Flats (2 x Studios & 1 x Two Bedroom Flat) Part Let Producing £4,800 Per Annum

The property comprises a mid terrace building arranged to provide a lower ground floor studio flat, a ground floor studio flat, a ground floor retail unit and a first and second floor two bedroom split level flat. The flats require a program of refurbishment, renovation and modernisation (all flats are vacant).

Tenure

Freehold

Location

The property is situated on a mixed use road close to local shops and amenities. The open spaces of Gillingham Park are within easy reach. Transport links are provided by Chatham rail station.

Accommodation

Lower Ground Floor Studio Flat Ground Floor Studio Flat (Kitchen not Fitted) Ground Floor Retail Unit First and Second Floor Flat First Floor Reception Room Bathroom Kitchen Second Floor Two Bedrooms

Exterior

The lower ground floor studio flat benefits from a private rear garden.

Tenancy

The retail unit is subject to a lease at a rent of £400 per calendar month.

The property has not been inspected by Auction House London. All information has been supplied by the vendor.

Services

Interested parties are requested to make their own enquiries to the relevant authorities as to the availability of services.

Important Notice to Prospective Buyers:

We draw your attention to the Special Conditions of Sale within the Legal Pack, referring to other charges in addition to the purchase price which may become payable. Such costs may include Search Fees, reimbursement of Sellers costs and Legal Fees, and Transfer Fees amongst others.

Additional Fees

Administration Charge - Purchasers will be required to pay an administration fee of £1,500 inc VAT

Disbursements - Please see the legal pack for any disbursements listed that may become payable by the purchaser on completion.

View Larger Map

Disclaimer: The map preview provided above is for general guidance only and may not accurately reflect the exact location or surrounding buildings. Prospective buyers and interested parties are strongly advised to independently verify the precise location and surroundings before bidding.