Call the team on 01872 484888 for more information
End of Terrace House
An end of terrace six bedroom house arranged over five levels, located in Torpoint town centre. The property has beautiful river views to the rear of the property and off road parking.
Tenure
Freehold
AUCTIONEERS NOTE
Please note - the property requires refurbishment works throughout.
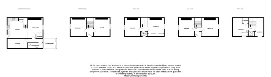
ACCOMMODATION
Lower Ground Floor Kitchen/Dining Room 8.47m x 3.89m (at widest point) Shower Room Conservatory 3.30m x 2.27m Store Room - unable to gain access. Ground Floor Living Room 4.04m to chimney breast x 3.30m Bedroom 3.99m to chimney breast x 3.42m First Floor Bedroom 3.99m x 3.47m W.C Bedroom 3.44m to wardrobe x 3.38m Second Floor Bedroom 4.07m to chimney breast x 3.59m W.C Bedroom 4.15m to chimney breast x 3.45m Third Floor Bathroom 4.25m x 2.35m Bedroom 4.28m x 2.53m narrowing to 2.11m Externally Off Road Parking Space. Garden backing onto the river with beautiful water views.
FULL DETAILS
Photographs, Dimensions, Floor Plans and Area Measurements (when available) are included within our full details online on our website. All published information is to aid identification of the property and is not necessarily to scale.
VIEWINGS
Please telephone Auction House South West on 03456 461361 to request a viewing.
NOTICE TO BIDDER
Please be aware that if your bid is successful on auction day the exchange of contracts will happen immediately after the auction.
Energy Efficiency Rating (EPC)
Current Rating D59
Local Authority
Cornwall County Council
Solicitors
Bright Solicitors LLP, Ref: Julie Milton, Tel: 01752 388883
Offered in association with
Lang Town & Country

Important Notice to Prospective Buyers:
We draw your attention to the Special Conditions of Sale within the Legal Pack, referring to other charges in addition to the purchase price which may become payable. Such costs may include Search Fees, reimbursement of Sellers costs and Legal Fees, and Transfer Fees amongst others.
Additional Fees
Buyer's Premium - £1000 inc VAT payable on exchange of contracts.
Administration Charge - £1200 inc VAT payable on exchange of contracts.
Disbursements - Please see the legal pack for any disbursements listed that may become payable by the purchaser on completion.
Disclaimer: The map preview provided above is for general guidance only and may not accurately reflect the exact location or surrounding buildings. Prospective buyers and interested parties are strongly advised to independently verify the precise location and surroundings before bidding.