For Sale By Auction | 14:00, 02 December 2025 | Lot 7

The Burrows, Burcot, Abingdon, Oxfordshire OX14 3DP

*Guide | £1,100,000 (plus fees)

  • Land
  • 1 Bedroom
  • Tenure: Freehold

Call the team on 0117 299 9889 for more information

Auction Date

Tue 02/12/2025

Auction Time

14:00

Auction Venue

Live Stream

Freehold Plot and Dwelling

A freehold plot measuring approximately 2.05 acres. The property has private gateway access, a one bedroom single story dwelling with two home offices, river Thames frontage and unspoilt river and open countryside views. There is potential to create a riverside home subject to planning and necessary consents.

Tenure

Freehold

AUCTIONEERS NOTE

The current dwelling is situated close to the River with both riparian and mooring rights. There is an opportunity to create a substantial, detached family home with river views, set back from Abingdon Road, Burcot-on-Thames. The plot benefits from a private and secure gated entrance, with a driveway leading to the existing parking area. There is currently one home office and two outbuildings as you enter the parking area followed by a pathway and lawned garden which heads down to the existing property which sits two thirds down the plot. Plot: c.2.08 acres River frontage: c.32m

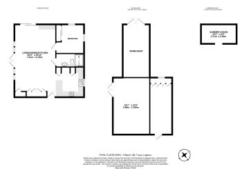
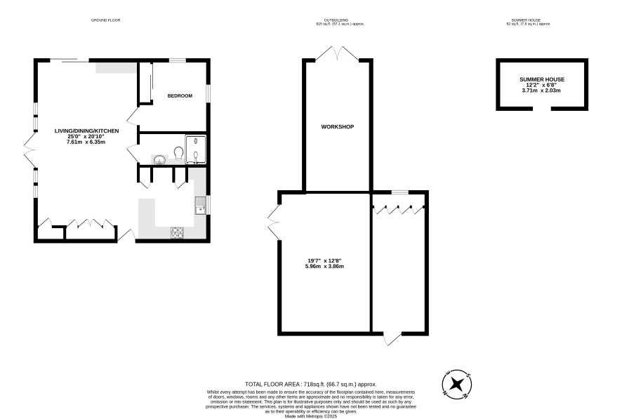
ACCOMMODATION

Entrance Hall Living/Kitchen/Dining Room: 20'10" x 25'0" Bedroom: 12'1" x 10'0" Shower Room OUTBUILDING Room One: 10'7" x 12'8" Room Two: Room Three Summer House

VIEWINGS

Regular block viewing sessions will be provided in the lead up to the auction. Please telephone Auction House South West on 03456 461361 to request a viewing.

FULL DETAILS

Photographs, Dimensions, Floor Plans and Area Measurements (when available) are included within the full property details, online, via our website. All published information is to aid identification of the property and is not necessarily to scale.

NOTICE TO BIDDER

Please be aware that if your Bid is successful on Auction day the exchange of contracts will happen immediately after the Auction.

Energy Efficiency Rating (EPC)

Current Rating D59

Local Authority

Oxfordshire County Council

Solicitors

Bower and Bailey, Ref: Bower and Bailey, Tel: 01865 311133

Important Notice to Prospective Buyers:

We draw your attention to the Special Conditions of Sale within the Legal Pack, referring to other charges in addition to the purchase price which may become payable. Such costs may include Search Fees, reimbursement of Sellers costs and Legal Fees, and Transfer Fees amongst others.

Additional Fees

Administration Charge - £1200 inc VAT payable on exchange of contracts.

Disbursements - Please see the legal pack for any disbursements listed that may become payable by the purchaser on completion.

View Larger Map

Disclaimer: The map preview provided above is for general guidance only and may not accurately reflect the exact location or surrounding buildings. Prospective buyers and interested parties are strongly advised to independently verify the precise location and surroundings before bidding.