Withdrawn | Lot 22

Flats 1-6, 113 - 115 Barnsley Road, South Elmsall, Pontefract, West Yorkshire WF9 2BH

Withdrawn

  • Terraced House
  • 6 Bedrooms

Call the team on 0113 393 3482 for more information

Auction Date

Wed 09/07/2025

Auction Time

12:00

Auction Venue

Live Stream

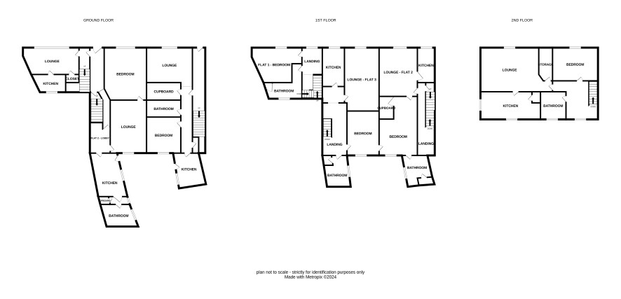
This substantial property comprises six self-contained 1 bedroom flats each let to the same tenant (Cascade Homes Group) on a 10 year lease from February 2022. The passing rent is £25,920 with the tenant responsible for all utilities and council tax. This represents an excellent opportunity for any landlord seeking a more hands-off investment. Based on the quoted guide price it equates to a return over 11%. The property is located between the towns of South Elmsall and South Kirkby with the local train station just 0.2 miles away.

Additional Information

Council Tax

Wakefield

Tenure

Freehold.

Charges & Payments

In addition to the deposit Administration Charge: 1.2% inc VAT of the purchase price subject to a minimum of £1,500 inc VAT.

Important Notice to Prospective Buyers:

We draw your attention to the Special Conditions of Sale within the Legal Pack, referring to other charges in addition to the purchase price which may become payable. Such costs may include Search Fees, reimbursement of Sellers costs and Legal Fees, and Transfer Fees amongst others.

Additional Fees

Administration Charge - See above

Disbursements - Please see the legal pack for any disbursements listed that may become payable by the purchaser on completion.

View Larger Map

Disclaimer: The map preview provided above is for general guidance only and may not accurately reflect the exact location or surrounding buildings. Prospective buyers and interested parties are strongly advised to independently verify the precise location and surroundings before bidding.