For Sale By Auction | 12:00, 09 July 2025 | Lot 21

Apt 26 Old Souls Mill, Crossflatts, Bingley , West Yorkshire BD16 2AN

Sold

  • Apartment
  • 2 Bedrooms

Call the team on 0113 393 3482 for more information

Auction Date

Wed 09/07/2025

Auction Time

12:00

Auction Venue

Live Stream

This vacant two bedroom first floor apartment with parking space is offered for sale via traditional auction. The property does require some internal works, however would make a fantastic addition to a rental portfolio. The development is situated off Wood Street in Crossflatts conveniently located for local shops and amenities, also being well served by road and rail links to other West Yorkshire business centres which include Bradford and Leeds. Leasehold information: Length of lease - 125 years from 1st January 2006 Service charge - £1,065.04 per annum Ground Rent - £350.00 per annum.

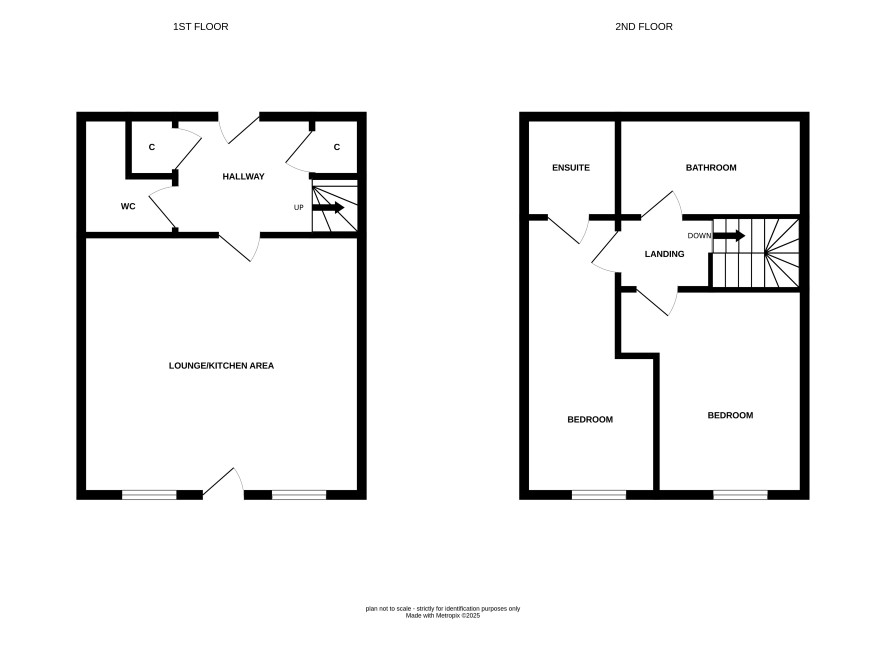
First Floor

Entrance hall, lounge/kitchen area and WC

Second Floor

Two bedrooms, bathroom and an en-suite to master

Externally

Parking space and communal garden

Additional Information

Council Tax

Bradford - Band D

EPC Rating

C

Tenure

Leasehold

Disclaimer

Any information in relation to the length of lease, service charge, ground rent and council tax has been confirmed by our sellers. We advise buyers to make their own enquiries through their solicitors to verify that the information provided is accurate and not been subject to any change.

Charges and Payments

In addition to the deposit Administration Charge: 1.2% inc VAT of the purchase price subject to a minimum of £1,500 inc VAT. Buyer?s Premium: £900 inc VAT.

Important Notice to Prospective Buyers:

We draw your attention to the Special Conditions of Sale within the Legal Pack, referring to other charges in addition to the purchase price which may become payable. Such costs may include Search Fees, reimbursement of Sellers costs and Legal Fees, and Transfer Fees amongst others.

Additional Fees

Administration Charge - See above

Disbursements - Please see the legal pack for any disbursements listed that may become payable by the purchaser on completion.

View Larger Map

Disclaimer: The map preview provided above is for general guidance only and may not accurately reflect the exact location or surrounding buildings. Prospective buyers and interested parties are strongly advised to independently verify the precise location and surroundings before bidding.