Withdrawn | Lot 58

17 Kensington Close, Batley, West Yorkshire WF17 7RL

Withdrawn

  • Detached House
  • 6 Bedrooms
  • Tenure: Freehold

Call the team on 0113 393 3482 for more information

Auction Date

Wed 09/07/2025

Auction Time

12:00

Auction Venue

Live Stream

This substantial six bedroom detached property is now in need of some refurbishment but is sure to be of interest to families and developers looking to put their own stamp on the property and hopefully add some value. It was last marketed by an estate agent for £375,000 so we are now able to offer a substantial discount of £160,000! Interested parties may also look to convert the car port into additional residential accommodation (subject to planning). Situated a stone's throw away from Batley Town Centre, residents will benefit from easy access to a wealth of amenities, as well as schools, supermarkets, shops, parks, restaurants. Please note – Some cracking was noticed on the property at the time of our inspection and interested parties are advised to do their own research in this regard prior to bidding.

Tenure

Freehold

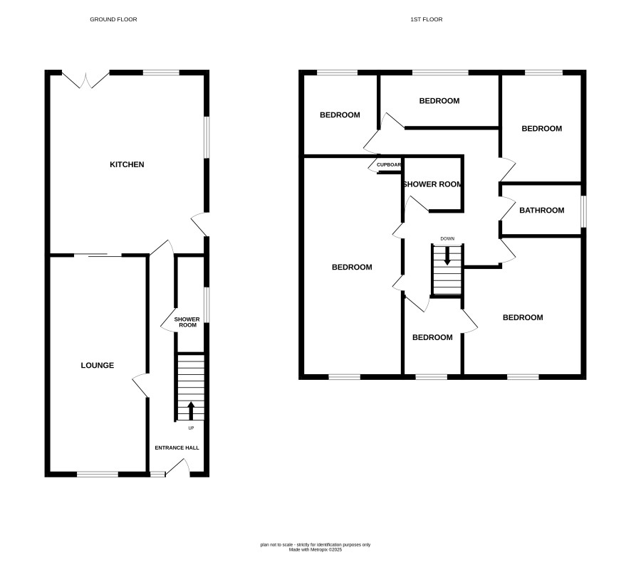
Ground Floor

Living room, Dining kitchen and shower room

First Floor

Six bedrooms, bathroom and a shower room

External

Front yard, driveway offering covered off street parking and large garden to the rear.

Additional Information

Council Tax

Kirklees - Band C

EPC Rating

C

Tenure

Freehold

Charges and Payments

In addition to the deposit Administration Charge: 1.2% inc VAT of the purchase price subject to a minimum of £1,500 inc VAT. Searches £300 inc VAT.

Disbursements

Any additional disbursements payable by the purchaser are yet to be confirmed by the vendor’s solicitor. For more details, please see the legal pack.

Guide Price

Guides are provided as an indication of each seller's minimum expectation. They are not necessarily figures which a property will sell for and may change at any time prior to the auction. Each property will be offered subject to a Reserve (a figure below which the Auctioneer cannot sell the property during the auction) which we expect will be set within the Guide Range or no more than 10% above a single figure Guide.

Important Notice to Prospective Buyers:

We draw your attention to the Special Conditions of Sale within the Legal Pack, referring to other charges in addition to the purchase price which may become payable. Such costs may include Search Fees, reimbursement of Sellers costs and Legal Fees, and Transfer Fees amongst others.

Additional Fees

Administration Charge - See above

Disbursements - Please see the legal pack for any disbursements listed that may become payable by the purchaser on completion.

View Larger Map

Disclaimer: The map preview provided above is for general guidance only and may not accurately reflect the exact location or surrounding buildings. Prospective buyers and interested parties are strongly advised to independently verify the precise location and surroundings before bidding.