For Sale By Auction | 12:00, 09 July 2025 | Lot 57

103 Bodmin Crescent, Leeds, West Yorkshire LS10 4NB

Sold

  • Semi-Detached House
  • 3 Bedrooms

Call the team on 0113 393 3482 for more information

Auction Date

Wed 09/07/2025

Auction Time

12:00

Auction Venue

Live Stream

This three bedroom semi detached property with gardens to front and rear is offered for sale via traditional auction. The property would benefit from some internal renovation, however would make a great family home or addition to a rental portfolio. Situated within close proximity to motorway links such as the M62 and M1 this makes an attractive purchase for the commuter. Good local primary and secondary schools are also close by making this home ideal for the growing family. Please note this property is of non-standard construction, buyers are advised to do their own research in this regard.

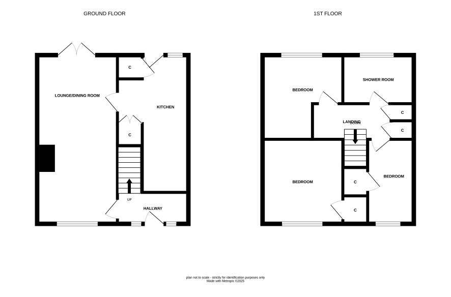
ACCOMMODATION

Ground Floor

Lounge/dining room and kitchen.

First Floor

Three bedrooms and shower room.

Externally

Gardens to the front and rear.

ADDITIONAL INFORMATION

Council Tax

Band A.

EPC

Rating E.

Tenure

Freehold.

Charges & Payments

In addition to the deposit Administration Charge: 1.2% inc VAT of the purchase price subject to a minimum of £1,500 inc VAT. Searches £300 inc VAT

Disbursements

Any additional disbursements payable by the purchaser are yet to be confirmed by the vendor’s solicitor. For more details, please see the legal pack.

Important Notice to Prospective Buyers:

We draw your attention to the Special Conditions of Sale within the Legal Pack, referring to other charges in addition to the purchase price which may become payable. Such costs may include Search Fees, reimbursement of Sellers costs and Legal Fees, and Transfer Fees amongst others.

Additional Fees

Administration Charge - See above

Disbursements - Please see the legal pack for any disbursements listed that may become payable by the purchaser on completion.

View Larger Map

Disclaimer: The map preview provided above is for general guidance only and may not accurately reflect the exact location or surrounding buildings. Prospective buyers and interested parties are strongly advised to independently verify the precise location and surroundings before bidding.