For Sale By Auction | 12:00, 12 February 2026 | Lot 34a

4 & 5 Dixon Ground, Coniston, Cumbria LA21 8HQ

*Guide | £290,000 (plus fees)

  • Terraced House
  • 6 Bedrooms
  • Tenure: See Legal Pack

Call the team on 01228 510 552 for more information

Auction Date

Thu 12/02/2026

Auction Time

12:00

Auction Venue

The Halston Hotel, 20-34 Warwick Road • CA1 1AB

2 Properties - 1 Lot !

Two bedroom mid terrace Lakeland cottage and a spacious four bedroom end of terrace Lakeland cottage, conveniently positioned close to the village centre. 5 Dixon Ground is subject to a lifetime tenancy at £311.50pcm.

Tenure

See Legal Pack

4 and 5 Dixon Ground will be offered initially as two separate lots and then as one combined lot. This is done by offering the separate lots as private auction lots which allows us to park the highest bids then offer the combined lot. Subject to the reserve being met if the bid for the combined lot is equal or in excess of the individual lots, it will be sold to that bidder. Or if the total of the bids on the individual lots are the highest they will be sold in that way.

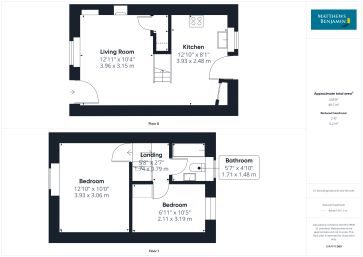
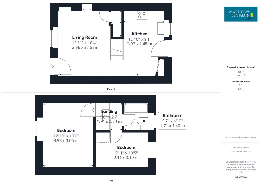
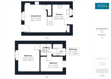
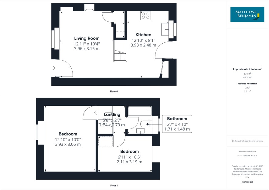
No 4 - Ground Floor

Living Room 12'11 x 10'4 with open fire place Kitchen 12'10 x 8'1 with a range of wall and base units

No 4 - First Floor

Bedroom 12'10 x 10' Bedroom 6'11 x 10'5 Bathroom 5'7 x 4'10 with shower over bath, WC and wash hand basin

No 5 - Ground Floor

Hall Living Room 15'9 x 10'6 Kitchen 15'2 x 10' Inner Hallway

No 5 - First Floor

Bedroom 13'11 x 9'11 Bedroom 12'9 x 11'7 Bedroom 12'9 x 9' Bathroom 5'2 x 7'4 Bedroom 7'2 x 11'5

Method of Sale

4 and 5 Dixon Ground will be offered initially as two separate lots and then as one combined lot. This is done by offering the separate lots as private auction lots which allows us to park the highest bids then offer the combined lot. Subject to the reserve being met if the bid for the combined lot is equal or in excess of the individual lots, it will be sold to that bidder. Or if the total of the bids on the individual lots are the highest they will be sold in that way.

Services

Interested parties are invited to make their own enquiries to the relevant authorities as to the availability of the services.

Local Authority

South Lakeland District Council

Offered in association with

Matthews Benjamin

Important Notice to Prospective Buyers:

We draw your attention to the Special Conditions of Sale within the Legal Pack, referring to other charges in addition to the purchase price which may become payable. Such costs may include Search Fees, reimbursement of Sellers costs and Legal Fees, and Transfer Fees amongst others.

Additional Fees

Administration Charge - 1.2% inc VAT of the purchase price, subject to a minimum of £1500 inc VAT, payable on exchange of contracts.

Disbursements - Please see the legal pack for any disbursements listed that may become payable by the purchaser on completion.

View Larger Map

Disclaimer: The map preview provided above is for general guidance only and may not accurately reflect the exact location or surrounding buildings. Prospective buyers and interested parties are strongly advised to independently verify the precise location and surroundings before bidding.