For Sale By Auction | 11:00, 12 February 2025 | Lot 7

Scout Hall, Oldfield Lane, Wisbech PE13 2RJ

Sold £234,000

  • Commercial Development
  • Tenure: Freehold

Call the team on 01733 889833 for more information

Auction Date

Wed 12/02/2025

Auction Time

11:00

Auction Venue

Livestream Auction

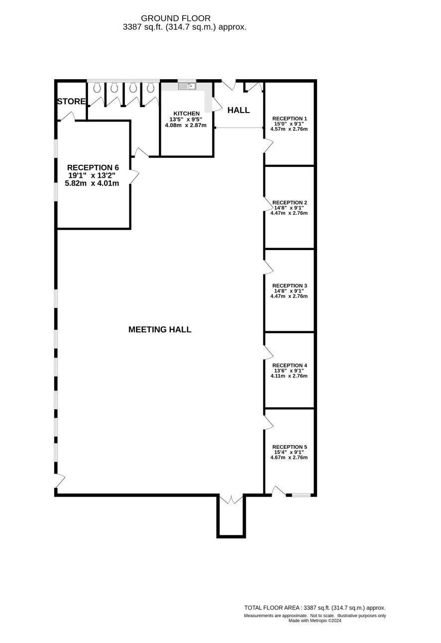
A former Scout Association HQ with a gross internal area of 349.24 sq m 3,795 sq ft set in 0.6 of an acre of grounds including a garage block.

This commercial building was formerly a Scout meeting hall with a kitchen toilets 6 separate rooms and the venture hut a brick built detached building at the rear. There is a car park at the front of the site with five garages in a block to the side of the meeting hall. The property is situated on a industrial estate on the edge of Wisbech. Wisbech offers a variety of shopping and recreational facilities with the A47 linking to Kings Lynn and Peterborough.

Tenure

Freehold

Meeting Hall

Hall, meeting room, six further rooms, kitchen and four toilets. Gross internal area of 349.24 sq m.

Venture Hut

Two rooms with a gross internal area of 27.77 sq m.

Block of garages

Block of five garages with a gross internal area of 199.32 sq m.

Outside

Total plot 0.6 of an acre. Car park to the front of the site.

Energy Efficiency Rating (EPC)

Current Rating G

Services

Interested parties are requested to make their own enquiries to the relevant authorities as to the availability of services.

Local Authority

Fenland District Council

Solicitors

Bowsers, Ref: Ian Groome, Tel: 01945 583194

Important Notice to Prospective Buyers:

We draw your attention to the Special Conditions of Sale within the Legal Pack, referring to other charges in addition to the purchase price which may become payable. Such costs may include Search Fees, reimbursement of Sellers costs and Legal Fees, and Transfer Fees amongst others.

Additional Fees

Buyer's Premium - £1200 inc VAT payable on exchange of contracts.

Administration Charge - 0.3% inc VAT of the purchase price, subject to a minimum of £1200 inc VAT, payable on exchange of contracts.

Disbursements - Please see the legal pack for any disbursements listed that may become payable by the purchaser on completion.

View Larger Map

Disclaimer: The map preview provided above is for general guidance only and may not accurately reflect the exact location or surrounding buildings. Prospective buyers and interested parties are strongly advised to independently verify the precise location and surroundings before bidding.