Withdrawn | Lot 8

11 Grenfell Road, Bury, Ramsey, Huntingdon, Cambridgeshire PE26 2QR

Withdrawn

  • Semi-Detached House
  • 3 Bedrooms
  • Tenure: Freehold

Call the team on 01733 889833 for more information

Auction Date

Wed 12/02/2025

Auction Time

11:00

Auction Venue

Livestream Auction

A three bedroom extended semi detached house with a potential income of £1000 pcm offered with vacant possession

This three bed semi detached house would be ideal for an investor/landlord with an annual income of £12,000 pa. The property has been extended with a conservatory at the rear and is ready to occupy or let out. Accommodation includes a lounge/diner, conservatory and kitchen on the ground floor with three bedrooms, a bathroom and separate wc on the first floor. Bury is located just outside Ramsey and has a local shop and public house with further facilities found at Ramsey. A main line rail link can be found at Huntingdon with a service into London Kings Cross.

Tenure

Freehold

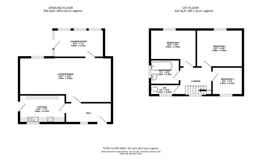
Ground Floor

Hall, lounge /diner, kitchen and a conservatory.

First floor

Landing, three bedrooms bathroom and a separate w.c.

Outside

Garden to front and rear, garage to the side.

Council Tax

B

Energy Efficiency Rating (EPC)

Current Rating C

Services

Interested parties are requested to make their own enquiries to the relevant authorities as to the availability of services.

Local Authority

Huntingdonshire District Council

Solicitors

Serjeant and Son, Ref: Owin Kan, Tel: 01487 812325

Important Notice to Prospective Buyers:

We draw your attention to the Special Conditions of Sale within the Legal Pack, referring to other charges in addition to the purchase price which may become payable. Such costs may include Search Fees, reimbursement of Sellers costs and Legal Fees, and Transfer Fees amongst others.

Additional Fees

Buyer's Premium - £1200 inc VAT payable on exchange of contracts.

Administration Charge - 0.3% inc VAT of the purchase price, subject to a minimum of £1200 inc VAT, payable on exchange of contracts.

Disbursements - Please see the legal pack for any disbursements listed that may become payable by the purchaser on completion.

View Larger Map

Disclaimer: The map preview provided above is for general guidance only and may not accurately reflect the exact location or surrounding buildings. Prospective buyers and interested parties are strongly advised to independently verify the precise location and surroundings before bidding.