Sold Prior | Lot 47

The Old School, Brandon Bank, Downham Market, Norfolk PE38 0PU

Sold Prior

  • Semi-Detached Bungalow
  • 3 Bedrooms
  • Tenure: Freehold

Call the team on 01733 889833 for more information

Auction Date

Wed 10/09/2025

Auction Time

10:00

Auction Venue

Livestream Auction

A three bedroom semi detached former school in need of renovation ideal for a developer/builder, located just off the River Ouse.

This former village school is located in the middle of the village siding the River Ouse. The property is in need of some updating offering the main school room, kitchen, three bedrooms, shower room a bathroom and separate W.C. Outside provides gated parking, a garage and an outbuilding. Brandon Bank is located on the River Ouse with local facilities found at Southery and Littleport, where a main line rail link is located with access into Cambridge and London Kings Cross.

Tenure

Freehold

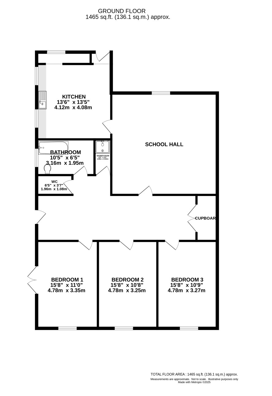
Accommodation

Hall, main hall, kitchen, three bedrooms, shower room, w.c., bathroom.

Outside

Garage, gardens, parking and an outbuilding.

Council Tax Band

B

Energy Efficiency Rating (EPC)

Current Rating F

Services

Interested parties are requested to make their own enquiries to the relevant authorities as to the availability of services.

Local Authority

Kings Lynn and West Norfolk Borough Council

Solicitors

Bell Park Kerridge, Ref: Anita Jobling, Tel: 01228 889 999

Important Notice to Prospective Buyers:

We draw your attention to the Special Conditions of Sale within the Legal Pack, referring to other charges in addition to the purchase price which may become payable. Such costs may include Search Fees, reimbursement of Sellers costs and Legal Fees, and Transfer Fees amongst others.

Additional Fees

Buyer's Premium - £1200 inc VAT payable on exchange of contracts.

Administration Charge - £1200 inc VAT payable on exchange of contracts.

Disbursements - Please see the legal pack for any disbursements listed that may become payable by the purchaser on completion.

View Larger Map

Disclaimer: The map preview provided above is for general guidance only and may not accurately reflect the exact location or surrounding buildings. Prospective buyers and interested parties are strongly advised to independently verify the precise location and surroundings before bidding.