Sold Prior | Lot 48

1 Kemps Close, Salters Lode, Downham Market, Norfolk PE38 0BB

Sold Prior

  • Semi-Detached House
  • 2 Bedrooms
  • Tenure: Freehold

Call the team on 01553 777 773 for more information

Auction Date

Wed 10/09/2025

Auction Time

10:00

Auction Venue

Livestream Auction

A two/three bedroom semi-detached house with good sized ground floor accommodation and in need of modernisation

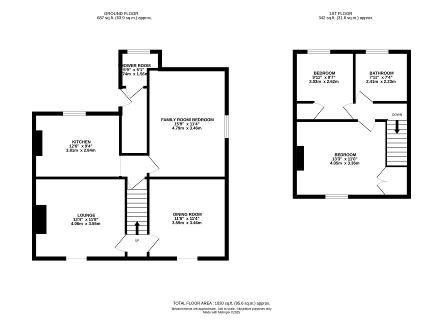
This semi-detached house is set back from the road and on a plot of approximately 0.15 acres (stms). The property is in need of modernisation and briefly comprises lounge, dining room, family/ bedroom three, kitchen and shower room. To the first floor there are two bedrooms and a bathroom. Outside there is ample off road parking to front and garden to rear. Located in the village of Salters Lode near to Downham Market which offers shops, schools, and a mainline rail line to King's Lynn, Cambridge, and London King's Cross. NB. There are signs of structural issues to the rear of the property, although no reports have been undertaken to confirm this.

Tenure

Freehold

Ground Floor

Lounge, dining room, kitchen, family room/ bedroom three, shower room

First Floor

Two bedrooms, bathroom

Outside

Front and rear gardens

Council Tax Band

A

Viewings

Viewings are available by appointment only. Please contact our Kings Lynn office to book your appointment.

Energy Efficiency Rating (EPC)

Current Rating E

Services

Interested parties are requested to make their own enquiries to the relevant authorities as to the availability of services.

Local Authority

Kings Lynn and West Norfolk Borough Council

Solicitors

Howes Percival (Norwich), Ref: Sophie Charles, Tel: 01603 281977

Important Notice to Prospective Buyers:

We draw your attention to the Special Conditions of Sale within the Legal Pack, referring to other charges in addition to the purchase price which may become payable. Such costs may include Search Fees, reimbursement of Sellers costs and Legal Fees, and Transfer Fees amongst others.

Additional Fees

Buyer's Premium - £1800 inc VAT payable on exchange of contracts.

Administration Charge - £1200 inc VAT payable on exchange of contracts.

Disbursements - Please see the legal pack for any disbursements listed that may become payable by the purchaser on completion.

View Larger Map

Disclaimer: The map preview provided above is for general guidance only and may not accurately reflect the exact location or surrounding buildings. Prospective buyers and interested parties are strongly advised to independently verify the precise location and surroundings before bidding.