For Sale By Auction | 10:00, 22 October 2025 | Lot 73

25 West Avenue, Clacton-On-Sea, Essex CO15 1EU

Sold After

  • Office
  • Tenure: Freehold

Call the team on 01473 558 888 for more information

Auction Date

Wed 22/10/2025

Auction Time

10:00

Auction Venue

Livestream Auction

A detached freehold investment close to the town centre.

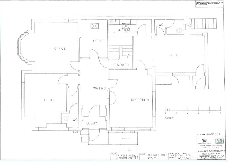
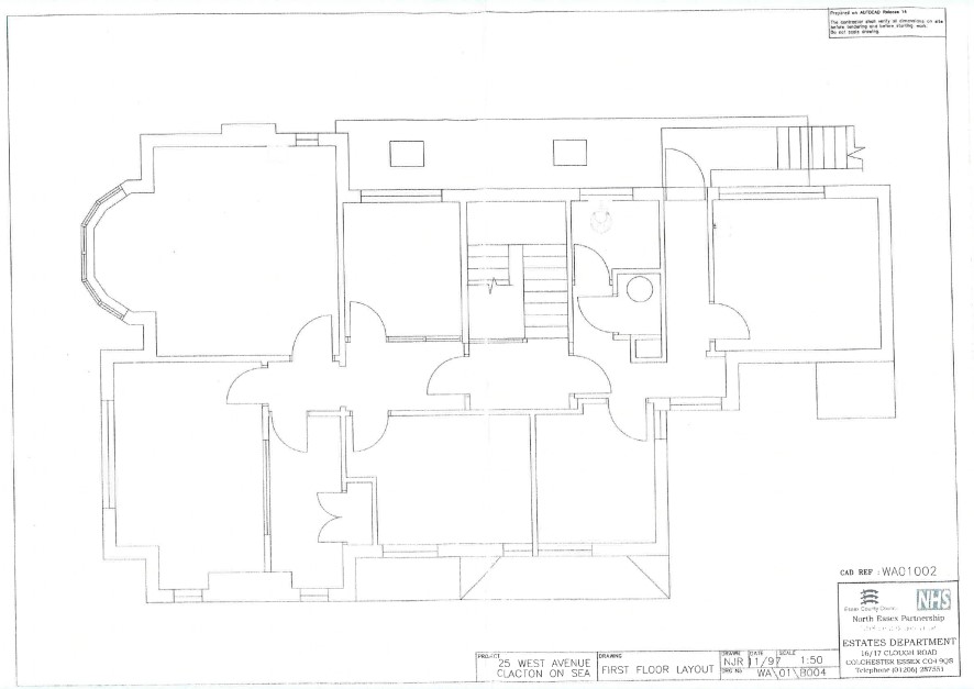
In the heart of Clacton is this detached building extending to approximately 2,641 sq ft (245 sq m) together with a garden and ample parking space. The property is let to The North East London Foundation Trust (part of the NHS) who have been in situ since 2019 at an annual rent of £20,000 which is paid quarterly in advance, there is no written tenancy or lease. With an annual rental return of over 11% at the lower end of the Guide Price we believe this to be a solid opportunity which is sure to appeal to a number of investors. IMPORTANT NOTE - Please be advised that internal viewings of this property are not possible and no one should turn up unannounced.

Tenure

Freehold

Viewings

NO INTERNAL VIEWINGS ARE POSSIBLE.

Energy Efficiency Rating (EPC)

Current Rating E

Services

Interested parties are requested to make their own enquiries to the relevant authorities as to the availability of services.

Local Authority

Tendring District Council

Solicitors

Barker Gotelee, Ref: Luke Cain, Tel: 01473 350578

Important Notice to Prospective Buyers:

We draw your attention to the Special Conditions of Sale within the Legal Pack, referring to other charges in addition to the purchase price which may become payable. Such costs may include Search Fees, reimbursement of Sellers costs and Legal Fees, and Transfer Fees amongst others.

Additional Fees

Buyer's Premium - £1200 inc VAT payable on exchange of contracts.

Administration Charge - £1200 inc VAT payable on exchange of contracts.

Disbursements - Please see the legal pack for any disbursements listed that may become payable by the purchaser on completion.

View Larger Map

Disclaimer: The map preview provided above is for general guidance only and may not accurately reflect the exact location or surrounding buildings. Prospective buyers and interested parties are strongly advised to independently verify the precise location and surroundings before bidding.